Mulberry Lane

5
Mulberry Lane
Tỷ lệ: 5 (93%) 68 votes
.Đánh giá của bạn
  • Loại hình phát triển Căn hộ, Chung cư
  • Chủ đầu tư Tập đoàn CapitaLand
  • Địa chỉ Khu đất Cổ Ngựa, Khu ĐTM Mỗ Lao, Phường Mỗ Lao, Hà Đông, Hà Nội
  • Tổng diện tích 24.466 m²
  • Giá bán 23.5 triệu/m²
  • Quy mô dự án Gồm 5 toà nhà với 1478 căn hộ

Thông tin căn hộ Mulberry Lane

Khu căn hộ Mulberry Lane tọa lạc tại vị trí đắc địa, ngay đầu quận Hà Đông, giáp ranh với khu hành chính mới TP. Hà Nội. Đây là vùng đất nổi tiếng với nghề dệt lụa truyền thông. Dự án lấy ý tưởng của các công đoạn dệt lụa bắt đầu từ lá dâu và kén tằm. Các căn hộ Mulberry Lane được ví với những kén tằm sẽ dệt nên một phong cách mà bạn ao ước.

Đến với Melberry, môi trường sống mơ ước của bạn sẽ thành hiện thực. Với cảnh quan và không gian được xây dựng theo hướng bảo vệ môi trường, khu căn hộ theo tiêu chí kiến trúc xanh nhưng vẫn bảo đảm cho cư dân có đầy đủ những tiện ích cao cấp. Không gian kiến trúc của dự án hướng tới môi trường được sử dụng hệ thống ánh sáng tự nhiên và thông gió được thiết kế thông thoáng và trải dài trong 80% không gian dự án. Chung cư là sự kết hợp gữa những nét Á Đông truyền thống và phong cách sống hiện đại.

Đặc biệt, kiến trúc xanh không chỉ đem tới những lợi ích to lớn về môi trường, kinh tế - xã hội mà còn chính là thước đo đẳng cấp cũng như sự phát triển bền vững của nhà đầu tư với ưu tiên hàng đầu về chất lượng dự án. Khu căn hộ Mulberry Lane chính là "Lựa chọn xanh cho cuộc sống hoàn hảo"…


Phối cảnh dự án Mulberry Lane

Mulberry Lane-0 Mulberry Lane-1 Mulberry Lane-2

Vị trí Mulberry Lane:

Chung cư Mulberry Lane tọa lạc tại Khu đất Cổ Ngựa, Khu Đô thị mới Mỗ Lao, phường Mỗ Lao, quận Hà Đông, Hà Nội. Dự án nằm ngay sát khu vực trung tâm hành chính mới của Thủ đô rất thuận lợi và dễ dàng di chuyển theo trục đường chính Lê Văn Lương kéo dài (Tố Hữu), Mulberry Lane cũng tọa lạc trên tuyến đường kết nối chính chạy thẳng đến Sân Bay Nội Bài

Vị trí của Mulberry Lane | ảnh 1
Vị trí dự án
Mulberry Lane

Hạ tầng Mulberry Lane:

Tiện ích nội khu

Các cư dân tại dự án Mulberry Lane sẽ được tận hưởng đầy đủ những tiện ích cao cấp của chung cư như bể bơi, gym, phòng tắm hơi, khu dưỡng dinh, sân chơi cầu lông, sân bóng rổ,... đều hiện hữu dưới chân tòa nhà. Hệ thống nhà trẻ, siêu thị mini đã đi vào hoạt động đồng bộ, cư dân chung cư được hưởng mức một mức phí ưu đãi nhất.


Phòng Karaoke tại dự án


Bãi đỗ xe tại dự án


Phòng đa chức năng tại dự án


Phòng xông hơi tại dự án


Phòng tập Yoga tại dự án


Thư viện - góc đọc sách tại dự án


Sân bóng rổ tại dự án


Sân chơi trẻ em tại dự án


Sân vườn trên cao tại dự án


Khu vực leo núi dành cho trẻ em


Sân cầu lông tại dự án


Hồ bơi tại dự án


Khu vực nướng ngoài trời tại dự án


Phòng tập thể hình tại dự án

Tiện ích ngoại khu

Các cơ sở hạ tầng hiện đại mới được hoàn thiện trong thời gian tới như đường tàu điện ngầm trên cao dự kiến hoàn thiện vào năm 2017. Tuyến đường này sẽ kết nối thuận lợi hơn đến trung tâm mới và cũ của Thủ đô Hà Nội.

Dự án Mulberry Lane cũng được bao bọc bởi các tiện ích công cộng như siêu thị, bệnh viện, trường học cấp phổ thông cùng rất nhiều trường đại học nổi tiếng trong khu vực này.


Các tiện ích xung quanh dự án

Sơ đồ tổng thể Mulberry Lane

Mulberry Lane

Mặt bằng Mulberry Lane

  • Tòa A
  • Tòa B
  • Tòa C
  • Tòa D
  • Tòa E
Tòa A

Các căn hộ tòa A Các căn hộ tòa B Các căn hộ tòa C Các căn hộ tòa D Các căn hộ tòa E

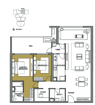
Thiết kế căn hộ A1A-7
Thiết kế căn hộ A1A-7 Giá: 23.5 triệu/m² DT: 46m²
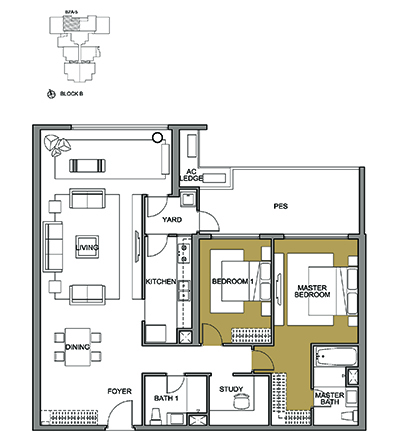
Thiết kế căn hộ A1C-1
Thiết kế căn hộ A1C-1 Giá: 23.5 triệu/m² DT: 46m²
Thiết kế căn hộ A1C-8
Thiết kế căn hộ A1C-8 Giá: 23.5 triệu/m² DT: 46m²
Thiết kế căn hộ B1-2
Thiết kế căn hộ B1-2 Giá: 23.5 triệu/m² DT: 90m²
Thiết kế căn hộ B2A-5
Thiết kế căn hộ B2A-5 Giá: 23.5 triệu/m² DT: 89m²
Thiết kế căn hộ B2B-11
Thiết kế căn hộ B2B-11 Giá: 23.5 triệu/m² DT: 89m²
Thiết kế căn hộ B2C-12
Thiết kế căn hộ B2C-12 Giá: 23.5 triệu/m² DT: 89m²
Thiết kế căn hộ B2D-4
Thiết kế căn hộ B2D-4 Giá: 23.5 triệu/m² DT: 89m²
Thiết kế căn hộ C1-14
Thiết kế căn hộ C1-14 Giá: 23.5 triệu/m² DT: 113m²
Thiết kế căn hộ C5-3
Thiết kế căn hộ C5-3 Giá: 23.5 triệu/m² DT: 118m²
Thiết kế căn hộ C5-13
Thiết kế căn hộ C5-13 Giá: 23.5 triệu/m² DT: 118m²
Thiết kế căn hộ C6-6
Thiết kế căn hộ C6-6 Giá: 23.5 triệu/m² DT: 121m²
Thiết kế căn hộ C6-10
Thiết kế căn hộ C6-10 Giá: 23.5 triệu/m² DT: 121m²
Thiết kế căn hộ A1B-9
Thiết kế căn hộ A1B-9 Giá: 23.5 triệu/m² DT: 46m²
Thiết kế căn hộ 01
Thiết kế căn hộ 01 Giá: 23.5 triệu/m² DT: 154m²
Thiết kế căn hộ 10
Thiết kế căn hộ 10 Giá: 23.5 triệu/m² DT: 154m²
Thiết kế căn hộ 02
Thiết kế căn hộ 02 Giá: 23.5 triệu/m² DT: 124m²
Thiết kế căn hộ 9
Thiết kế căn hộ 9 Giá: 23.5 triệu/m² DT: 124m²
Thiết kế căn hộ 03
Thiết kế căn hộ 03 Giá: 23.5 triệu/m² DT: 114m²
Thiết kế căn hộ 08
Thiết kế căn hộ 08 Giá: 23.5 triệu/m² DT: 114m²
Thiết kế căn hộ 04
Thiết kế căn hộ 04 Giá: 23.5 triệu/m² DT: 137m²
Thiết kế căn hộ 07
Thiết kế căn hộ 07 Giá: 23.5 triệu/m² DT: 137m²
Thiết kế căn hộ 05
Thiết kế căn hộ 05 Giá: 23.5 triệu/m² DT: 128m²
Thiết kế căn hộ 06
Thiết kế căn hộ 06 Giá: 23.5 triệu/m² DT: 128m²
Thiết kế căn hộ C4-1
Thiết kế căn hộ C4-1 Giá: 23.5 triệu/m² DT: 154m²
Thiết kế căn hộ B6-2
Thiết kế căn hộ B6-2 Giá: 23.5 triệu/m² DT: 124m²
Thiết kế căn hộ B9-3
Thiết kế căn hộ B9-3 Giá: 23.5 triệu/m² DT: 187m²
Thiết kế căn hộ C4-10
Thiết kế căn hộ C4-10 Giá: 23.5 triệu/m² DT: 154m²
Thiết kế căn hộ B7-5
Thiết kế căn hộ B7-5 Giá: 23.5 triệu/m² DT: 128m²
Thiết kế căn hộ C2-4
Thiết kế căn hộ C2-4 Giá: 23.5 triệu/m² DT: 137m²
Thiết kế căn hộ 04
Thiết kế căn hộ 04 Giá: 23.5 triệu/m² DT: 137m²
Thiết kế căn hộ 05
Thiết kế căn hộ 05 Giá: 23.5 triệu/m² DT: 128m²
Thiết kế căn hộ 06
Thiết kế căn hộ 06 Giá: 23.5 triệu/m² DT: 128m²
Thiết kế căn hộ 08
Thiết kế căn hộ 08 Giá: 23.5 triệu/m² DT: 126m²
Thiết kế căn hộ 10
Thiết kế căn hộ 10 Giá: 23.5 triệu/m² DT: 154m²
Thiết kế căn hộ 01
Thiết kế căn hộ 01 Giá: 23.5 triệu/m² DT: 154m²
Thiết kế căn hộ 09
Thiết kế căn hộ 09 Giá: 23.5 triệu/m² DT: 124m²
Thiết kế căn hộ 02
Thiết kế căn hộ 02 Giá: 23.5 triệu/m² DT: 124m²
Thiết kế căn hộ 03
Thiết kế căn hộ 03 Giá: 23.5 triệu/m² DT: 114m²
Thiết kế căn hộ 07
Thiết kế căn hộ 07 Giá: 23.5 triệu/m² DT: 137m²
Thiết kế căn hộ C3-1
Thiết kế căn hộ C3-1 Giá: 23.5 triệu/m² DT: 132m²
Thiết kế căn hộ C8-2
Thiết kế căn hộ C8-2 Giá: 23.5 triệu/m² DT: 136m²
Thiết kế căn hộ B3-03
Thiết kế căn hộ B3-03 Giá: 23.5 triệu/m² DT: 90m²
Thiết kế căn hộ B5-5
Thiết kế căn hộ B5-5 Giá: 23.5 triệu/m² DT: 100m²
Thiết kế căn hộ C7-4
Thiết kế căn hộ C7-4 Giá: 23.5 triệu/m² DT: 128m²
Thiết kế căn hộ B5-6
Thiết kế căn hộ B5-6 Giá: 23.5 triệu/m² DT: 100m²
Thiết kế căn hộ C7-7
Thiết kế căn hộ C7-7 Giá: 23.5 triệu/m² DT: 128m²
Thiết kế căn hộ B3-8
Thiết kế căn hộ B3-8 Giá: 23.5 triệu/m² DT: 90m²
Thiết kế căn hộ C8-9
Thiết kế căn hộ C8-9 Giá: 23.5 triệu/m² DT: 136m²
Thiết kế căn hộ C3-10
Thiết kế căn hộ C3-10 Giá: 23.5 triệu/m² DT: 132m²
Thiết kế căn hộ A1A-7 | Giá: 23.5 triệu/m² | DT: 46m² Thiết kế căn hộ A1C-1 | Giá: 23.5 triệu/m² | DT: 46m² Thiết kế căn hộ A1C-8 | Giá: 23.5 triệu/m² | DT: 46m² Thiết kế căn hộ B1-2 | Giá: 23.5 triệu/m² | DT: 90m² Thiết kế căn hộ B2A-5 | Giá: 23.5 triệu/m² | DT: 89m² Thiết kế căn hộ B2B-11 | Giá: 23.5 triệu/m² | DT: 89m² Thiết kế căn hộ B2C-12 | Giá: 23.5 triệu/m² | DT: 89m² Thiết kế căn hộ B2D-4 | Giá: 23.5 triệu/m² | DT: 89m² Thiết kế căn hộ C1-14 | Giá: 23.5 triệu/m² | DT: 113m² Thiết kế căn hộ C5-3 | Giá: 23.5 triệu/m² | DT: 118m² Thiết kế căn hộ C5-13 | Giá: 23.5 triệu/m² | DT: 118m² Thiết kế căn hộ C6-6 | Giá: 23.5 triệu/m² | DT: 121m² Thiết kế căn hộ C6-10 | Giá: 23.5 triệu/m² | DT: 121m² Thiết kế căn hộ A1B-9 | Giá: 23.5 triệu/m² | DT: 46m² Thiết kế căn hộ 01 | Giá: 23.5 triệu/m² | DT: 154m² Thiết kế căn hộ 10 | Giá: 23.5 triệu/m² | DT: 154m² Thiết kế căn hộ 02 | Giá: 23.5 triệu/m² | DT: 124m² Thiết kế căn hộ 9 | Giá: 23.5 triệu/m² | DT: 124m² Thiết kế căn hộ 03 | Giá: 23.5 triệu/m² | DT: 114m² Thiết kế căn hộ 08 | Giá: 23.5 triệu/m² | DT: 114m² Thiết kế căn hộ 04 | Giá: 23.5 triệu/m² | DT: 137m² Thiết kế căn hộ 07 | Giá: 23.5 triệu/m² | DT: 137m² Thiết kế căn hộ 05 | Giá: 23.5 triệu/m² | DT: 128m² Thiết kế căn hộ 06 | Giá: 23.5 triệu/m² | DT: 128m² Thiết kế căn hộ C4-1 | Giá: 23.5 triệu/m² | DT: 154m² Thiết kế căn hộ B6-2 | Giá: 23.5 triệu/m² | DT: 124m² Thiết kế căn hộ B9-3 | Giá: 23.5 triệu/m² | DT: 187m² Thiết kế căn hộ C4-10 | Giá: 23.5 triệu/m² | DT: 154m² Thiết kế căn hộ B7-5 | Giá: 23.5 triệu/m² | DT: 128m² Thiết kế căn hộ C2-4 | Giá: 23.5 triệu/m² | DT: 137m² Thiết kế căn hộ 04 | Giá: 23.5 triệu/m² | DT: 137m² Thiết kế căn hộ 05 | Giá: 23.5 triệu/m² | DT: 128m² Thiết kế căn hộ 06 | Giá: 23.5 triệu/m² | DT: 128m² Thiết kế căn hộ 08 | Giá: 23.5 triệu/m² | DT: 126m² Thiết kế căn hộ 10 | Giá: 23.5 triệu/m² | DT: 154m² Thiết kế căn hộ 01 | Giá: 23.5 triệu/m² | DT: 154m² Thiết kế căn hộ 09 | Giá: 23.5 triệu/m² | DT: 124m² Thiết kế căn hộ 02 | Giá: 23.5 triệu/m² | DT: 124m² Thiết kế căn hộ 03 | Giá: 23.5 triệu/m² | DT: 114m² Thiết kế căn hộ 07 | Giá: 23.5 triệu/m² | DT: 137m² Thiết kế căn hộ C3-1 | Giá: 23.5 triệu/m² | DT: 132m² Thiết kế căn hộ C8-2 | Giá: 23.5 triệu/m² | DT: 136m² Thiết kế căn hộ B3-03 | Giá: 23.5 triệu/m² | DT: 90m² Thiết kế căn hộ B5-5 | Giá: 23.5 triệu/m² | DT: 100m² Thiết kế căn hộ C7-4 | Giá: 23.5 triệu/m² | DT: 128m² Thiết kế căn hộ B5-6 | Giá: 23.5 triệu/m² | DT: 100m² Thiết kế căn hộ C7-7 | Giá: 23.5 triệu/m² | DT: 128m² Thiết kế căn hộ B3-8 | Giá: 23.5 triệu/m² | DT: 90m² Thiết kế căn hộ C8-9 | Giá: 23.5 triệu/m² | DT: 136m² Thiết kế căn hộ C3-10 | Giá: 23.5 triệu/m² | DT: 132m²

THƯ VIỆN ẢNH Mulberry Lane

Căn hộ Mulberry Lane
Căn hộ Mulberry Lane
Căn hộ Mulberry Lane 1 Căn hộ Mulberry Lane 2 Căn hộ Mulberry Lane 3 Căn hộ Mulberry Lane 4 Căn hộ Mulberry Lane 5 Căn hộ Mulberry Lane 6 Căn hộ Mulberry Lane 7 Căn hộ Mulberry Lane 8

Tiến độ quý I/2016 (ngày 08/03/2016) Mulberry Lane

  • Dự án đang triển khai xây 2 tòa đến tầng 12, 3 tòa còn lại xây tới 24 tầng

    Dự án đang triển khai xây 2 tòa đến tầng 12, 3 tòa còn lại xây tới 24 tầng

VIDEO Mulberry Lane - Weaving your life

Mulberry Lane - Weaving your life

Lộ trình thanh toán Mulberry Lane

Giá bán của chủ đầu tư: Từ 23,5 tr/m2 (chưa bao gồm VAT)

Giá bán hiện tại: 27 - 29 triệu/m2 tùy vị trí căn hộ

Tiến độ thanh toán linh hoạt được chia làm 4 đợt:

- Đợt 1: Thanh toán 20% trước khi ký hợp đồng mua bán
- Đợt 2: Thanh toán 25% vào ngày cuối cùng của tháng thứ 3 sau ngày ký hợp đồng mua bán
- Đợt 3: Thanh toán 25% vào ngày cuối cùng của tháng thứ 6 sau ngày ký hợp đồng mua bán
- Đợt 4: Thanh toán 30% khi nhận được thông báo nhận bàn giao căn hộ
- Dự án hợp tác 3 ngân hàng: Standard Chartered, VIB, Ngân hàng Quân đội

Chủ đầu tư Mulberry Lane

  • Tập đoàn CapitaLand
  • Địa chỉ:Tầng 8, tòa nhà Vista, số 628C Xa Lộ Hà Nội, phường An Phú, Quận 2, Hồ Chí Minh
  • Điện thoại:(08) 35191067
  • Email: thekrista@capitaland.com
  • WebSite:www.capitaland.com.vn

Tập đoàn CapitaLand là một trong những tập đoàn bất động sản lớn nhất châu Á. Được niêm yết với trụ sở chính tại Singapore, CapitaLand hoạt động chính trong các lĩnh vực bất động sản, quản lý quỹ đầu tư bất động sản ở 2 thị trường chính Singapore và Trung Quốc.

Danh mục đầu tư bất động sản đa dạng bao gồm nhà ở, văn phòng, trung tâm thương mại, căn hộ dịch vụ và khu phức hợp. CapitaLand sở hữu một trong những quỹ đầu tư bất động sản lớn nhất Châu Á. CapitaLand cũng sở hữu những dự án bất động sản điển hình, với kinh nghiệm vững mạnh, thiết kế tiêu chuẩn cùng năng lực xây dựng, chiến lược quản lý quỹ hiệu quả và mạng lưới thị trường rộng khắp nhằm mang lại dịch vụ và sản phẩm bất động sản tốt nhất.

Các công ty thành viên của CapitaLand đã được niêm yết:

- Ascott Residence Trust - Quỹ tín thác bất động sản về căn hộ dịch vụ đầu tiên của châu Á lớn nhất thế giới.
- CapitaCommercial Trust - Quỹ tín thác bất động sản về thương mại được niêm yết đầu tiên ở Singapore
- CapitaMall Trust - Quỹ tín thác bất động sản đầu tiên được niêm yết ở Singapore
- CapitaMalls Malaysia Trust - Quỹ tín thác bất động sản về khu phức hợp lớn nhất ở Malaysia
- CapitaRetail China Trust - Quỹ tín thác bất động sản bán lẻ Trung Quốc đầu tiên ở Singapore

CapitaLand Việt Nam

Việt Nam là một trong những thị trường trọng điểm của CapitaLand tại châu Á. Thị trường bất động sản ở Việt Nam được sự hậu thuẫn từ nền kinh tế phát triển tốt và tốc độ đô thị hóa nhanh và dân số còn trẻ. CapitaLand cam kết là một nhà đầu tư lâu dài về bất động sản tại Việt Nam

Tập đoàn hiện có mặt tại bốn thành phố lớn của Việt Nam là TP. HCM, Hà Nội, Hải Phòng và Đà Nẵng, đầu tư trong lĩnh vực căn hộ nhà ở và căn hộ dịch vụ. Đến nay, CapitaLand đã cung cấp cho thị trường nhà ở TP.HCM và Hà Nội hơn 6.000 căn hộ chất lượng với sáu dự án nhà ở. Ascott Limited, công ty con do CapitaLand sở hữu 100% vốn, có danh mục đầu tư gồm hơn 1.800 căn hộ dịch vụ thuộc 12 toà nhà Somerset tại bốn thành phố lớn kể trên. Ascott là chủ sở hữu kiêm nhà điều hành quốc tế về căn hộ dịch vụ lớn nhất tại Việt Nam.

CapitaLand cam kết đóng góp cho sự phát triển của nền kinh tế Việt Nam thông qua việc tuyển dụng và đào tạo đội ngũ nhân viên địa phương, trao đổi kiến thức và kĩ năng với đối tác địa phương và đóng góp cho cộng đồng sở tại, đặc biệt là giúp đỡ trẻ em kém may mắn, bằng những hoạt động mang tính trách nghiệm xã hội doanh nghiệp.

Tin rao thuộc dự án

Xem tin rao Bán căn hộ chung cư Mulberry Lane

Xem tin rao Bán loại bất động sản khác Mulberry Lane

Xem tin rao Cho thuê căn hộ chung cư Mulberry Lane

Xem tin rao Cần thuê căn hộ chung cư Mulberry Lane

Dự án cùng khu vực

Seasons Avenue

Seasons Avenue

KĐT Mỗ Lao, Phường Mỗ Lao, Hà Đông, Hà Nội

Giá từ:26.5 triệu/m²

PCC1 Complex

PCC1 Complex

Đường Ba La, Phường Phú Lương, Hà Đông, Hà Nội

Giá từ:14.9 triệu/m²

ICID Complex

ICID Complex

Khu C, Khu đô thị Lê Trọng Tân, Dương Nội, Hà Đông, Hà Nội

Giá từ:14.5 triệu/m²

Xem thêm

Dự án cùng phân khúc

Seasons Avenue

Seasons Avenue

KĐT Mỗ Lao, Phường Mỗ Lao, Hà Đông, Hà Nội

Giá từ:26.5 triệu/m²

PCC1 Complex

PCC1 Complex

Đường Ba La, Phường Phú Lương, Hà Đông, Hà Nội

Giá từ:14.9 triệu/m²

ICID Complex

ICID Complex

Khu C, Khu đô thị Lê Trọng Tân, Dương Nội, Hà Đông, Hà Nội

Giá từ:14.5 triệu/m²

The Pride

The Pride

Đường Lê Văn Lương, Phường La Khê, Hà Đông, Hà Nội

Giá từ:21.5 triệu/m²

The Vesta

The Vesta

Phường Phú Lãm, Hà Đông, Hà Nội

Giá từ:21.9 triệu/m²

Tháp doanh nhân Tower

Tháp doanh nhân Tower

Số 1 Đường Thanh Bình, Phường Yết Kiêu, Hà Đông, Hà Nội

Giá từ:16.8 triệu/m²

Xem thêm

Tiện ích
Xem phong thủy theo tuổi
Tìm kiếm dự án BĐS