New Space Giang Biên
- Loại hình phát triển Căn hộ, Chung cư
- Chủ đầu tư Công ty TNHH MTV Đầu tư Xây lắp và Phát triển Nhà
- Địa chỉ N09 - Khu TDC phường Giang Biên, Long Biên, Hà Nội
- Tổng diện tích 15.358 m²
- Diện tích xây dựng 8.031 m²
- Mật độ xây dựng 37%
- Bàn giao nhà Quý I-II/2016
- Giá bán 17 triệu/m²
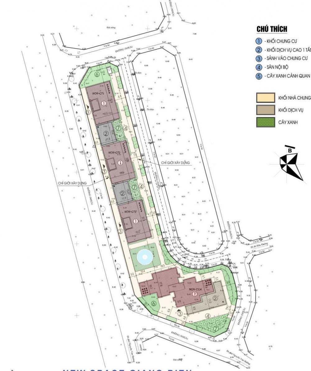
- Quy mô dự án 3 block chung cư 5 tầng (CC1; CC2; CC3) và block chung cư 9 tầng (CC4)
Thông tin dự án New Space Giang Biên
Căn hộ New Space Giang Biên được xây dựng với tiêu chí bình dị tới thân thương, đem lại một không gian thoáng mát, an bình. Dự án tọa lạc ở lô đất N09 phường Giang Biên, quận Long Biên, Hà Nội. Tòa nhà nằm ngay mặt đường 48m, trục giao thông nối liền Khu đô thị Việt Hưng, khu chung cư New Space, Vincom Reverside ra đường Ngô Gia Tự. New Space Giang Biên như một điểm nhấn thanh bình và thân thuộc giữa một đô thị náo nhiệt.
- Tên dự án: New Space Giang Biên
- Chủ đầu tư: Công ty CP Đầu tư và Phát triển Nhà
- Quy mô: 3 block chung cư 5 tầng (CC1; CC2; CC3) và block chung cư 9 tầng (CC4) gồm 124 căn hộ
- Tổng diện tích: 15.358m2
- Diện tích xây dựng: 8031m2
- Mật độ xây dựng: 37%.
- Thời gian bàn giao nhà dự kiến:
+ Khối 3 tòa 5 tầng: Quý I/2016
+ Khối 9 tầng: Quý II/2016

Phối cảnh tổng thể New Space Giang Biên
Vị trí New Space Giang Biên:
Chung cư New Space Giang Biên tọa lạc tại lô đất N09 phường Giang Biên, quận Long Biên, Hà Nội, nằm ngay mặt đường 48m, trục giao thông nối liền Khu Đô thị Việt Hưng, khu chung cư New Space, Vincom Reverside ra đường Ngô Gia Tự.

Vị trí dự án New Space
Hạ tầng New Space Giang Biên:
New Space Giang Biên có nhiều tiện ích vượt trội được đầu tư xây dựng theo tiêu chuẩn quốc tế, đáp ứng nhu cầu phong phú của cư dân, đem tới không gian sống đẳng cấp, đầy đủ tiện nghi với hệ thống tiện ích từ cửa hàng tiện lợi 24h, hồ bơi, nhà thuốc, phòng tập Gym, nhà hàng, ngân hàng, cửa hàng cafe, sân chơi trẻ em,...
Bên cạnh đó, diện tích xây dựng của dự án chỉ chiếm 37%, còn lại là không gian sống xanh được chủ đầu tư chăm chút. Khu vực sân chơi nội bộ và vườn cây xanh được thiết kế đa dạng các loài cây, hoa, bãi cỏ,... mang đến sự thư giãn tuyệt đối cho các cư dân. Ngoài ra, hệ thống thang máy an toàn Mitsubishi - Nhật Bản có tải trọng 1000kg phục vụ cho nhu cầu lớn của cư dân.




Tiện ích đủ đầy và đa dạng
Sơ đồ tổng thể New Space Giang Biên
Mặt bằng New Space Giang Biên
- T2-5 tòa CC1-2-3
- T2-9 tòa CC4
Các căn hộ tầng 2-5 tòa CC1-2-3 Các căn hộ tầng 2-9 tòa CC4
THƯ VIỆN ẢNH New Space Giang Biên
Tiến độ quý I/2016 (ngày 03/02/2016) New Space Giang Biên
Tiến độ quý II/2016 (ngày 27/6/2016) New Space Giang Biên
Tiến độ quý III/2016 (ngày 31/09/2016) New Space Giang Biên
Tiến độ quý I/2017 (ngày 04/03/2017) New Space Giang Biên
VIDEO Hình ảnh căn hộ mẫu dự án New Space Giang Biên
Lộ trình thanh toán New Space Giang Biên
Giá bán căn hộ chung cư tại dự án New Space Giang Biên:
- Đối với tòa 5 tầng: Căn hộ A, B, C: 17 triệu/m2
- Đối với tòa 9 tầng:
+ Căn hộ D: 18 triệu/m2
+ Căn hộ E: 17,5 triệu/m2
- Tiến độ thanh toán áp dụng cho tòa CC1, CC2, CC3
Đợt thanh toán
Thời gian thanh toán
Tỉ lệ thanh toán
Đợt 1
Ngay khi ký kết Hợp đồng mua bán căn hộ
30%
Đợt 2
15 ngày sau khi ký Hợp đồng mua bán căn hộ
20%
Đợt 3
07 ngày kể từ ngày đóng tiền đợt 2
20%
Đợt 4
Bàn giao căn hộ
25%
Đợt 5
Nhận hồ sơ cấp Giấy chứng nhận sở hữu căn hộ
5%
Tổng cộng
100%
- Tiến độ thanh toán áp dụng cho tòa CC4
Đợt thanh toán
Thời gian thanh toán
Tỉ lệ thanh toán
Đợt 1
Ngay khi ký kết Hợp đồng mua bán căn hộ
30%
Đợt 2
15 ngày sau khi ký Hợp đồng mua bán căn hộ
20%
Đợt 3
15 ngày kể từ ngày đóng tiền đợt 2
20%
Đợt 4
Bàn giao căn hộ
25%
Đợt 5
Nhận hồ sơ cấp Giấy chứng nhận sở hữu căn hộ
5%
Tổng cộng
100%
Chủ đầu tư New Space Giang Biên
- Công ty TNHH MTV Đầu tư Xây lắp và Phát triển Nhà
- Địa chỉ:17/91 Nguyễn Chí Thanh, Phường Láng Hạ, Quận Đống Đa, Thành phố Hà Nội
- Điện thoại:(04) 38359564
- Email: contact@batdongsan.com.vn
Công ty TNHH MTV Đầu tư Xây lắp và Phát triển Nhà được thành lập theo Giấy phép kinh doanh số 0100111031, cấp ngày 25/06/2012. Doanh nghiệp hoạt động chính trong lĩnh vực đầu tư, kinh doanh, tư vấn, môi giới bất động sản.
Lịnh sử phát triển
Xí nghiệp Xây lắp và Sản xuất Vật liệu xây dựng trực thuộc Công ty sản xuất - dịch vụ Thăng Long được thành lập theo quyết định số 1232 QĐ/UB ngày 06/07/1991 của UBND TP Hà Nội.
Chuyển thành Công ty Đầu tư Xây lắp và Phát triển Nhà theo quyết định số 580 QĐ/UB.
Công ty Đầu tư Xây lắp và Phát triển Nhà chính thức thành lập theo quyết định số 1014 QĐ/UB ngày 11/ 03/1993.
Công ty Đầu tư Xây lắp và Phát triển Nhà chuyển thành Công ty Trách nhiệm hữu hạn Một thành viên theo quyết định số 3473/QĐ – UBND ngày 13/07/2010.
Công ty Trách nhiệm hữu hạn Một thành viên Đầu tư xây lắp và phát triển nhà chuyển thành Công ty Cổ phần Đầu tư Xây lắp và Phát triển Nhà (HIDC) theo quyết định số 1396/ QĐ - UBND
Công ty cổ phần Đầu tư Xây lắp và Phát triển Nhà tổ chức Đại hội đồng cổ đông lần đầu ngày 05/04/2012.
Công ty TNHH MTV Đầu tư Xây lắp và Phát triển Nhà không ngừng phát triển vững vàng về mọi mặt, thường xuyên xây dựng kiện toàn, nâng cao năng lực quản lý, điều hành sản xuất, đổi mới trong thiết bị, áp dụng các tiến bộ khoa học và sản xuất kinh doanh, với tiêu chí Hướng đến sự toàn thiện
Lĩnh vực kinh doanh
- Xây dựng nhà các loại;
- Xây dựng công trình công ích (Công trình hạ tầng kỹ thuật, Công trình thủy lợi);
- Đầu tư, kinh doanh bất động sản, quyền sử dụng đất thuộc chủ sở hữu, chủ sử dụng hoặc đi thuê;
- Tư vấn, môi giới, đấu giá bất động sản, đấu giá quyền sử dụng đất (Dịch vụ môi giới bất động sản);
- Hoạt động thiết kế chuyên dụng (Dịch vụ trang trí nội thất);
- Quảng cáo;
- Giáo dục tiểu học;
- Giáo dục trung học cơ sở và trung học phổ thông.
Dự án cùng khu vực
One 18 Ngọc Lâm
Số 19, ngõ 298 Ngọc Lâm (ngõ 107 Nguyễn Văn Cừ), phường Ngọc Lâm, quận Long Biên, TP. Hà Nội
Giá từ:26 triệu/m²
Ecohome Phúc Lợi
Ô đất CT1 KĐT Việt Hưng, phường Phúc Lợi, quận Long Biên, TP. Hà Nội
Giá từ:16.5 triệu/m²
Dự án cùng phân khúc
One 18 Ngọc Lâm
Số 19, ngõ 298 Ngọc Lâm (ngõ 107 Nguyễn Văn Cừ), phường Ngọc Lâm, quận Long Biên, TP. Hà Nội
Giá từ:26 triệu/m²
Ecohome Phúc Lợi
Ô đất CT1 KĐT Việt Hưng, phường Phúc Lợi, quận Long Biên, TP. Hà Nội
Giá từ:16.5 triệu/m²
Eco City Việt Hưng
Lô CT-21B - Khu đô thị mới Việt Hưng, phường Giang Biên, quận Long Biên, TP. Hà Nội
Giá từ:23.6 triệu/m²