HH2 - Bắc Hà
- Loại hình phát triển Căn hộ, Chung cư
- Chủ đầu tư Công ty CP Xây dựng và Thương mại Bắc Hà
- Địa chỉ Xã Trung Văn, Nam Từ Liêm, Hà Nội
- Tổng diện tích 3.000 m²
- Diện tích xây dựng 980 m²
- Mật độ xây dựng 50%
- Quy mô dự án 2 tòa chung cư 25 tầng với trên 300 căn hộ
Thông tin về chung Cư HH2 Bắc Hà
Chung Cư HH2 Bắc Hà - Chung cư HH2 NXB Công an Nhân dân là tòa nhà hỗn hợp một phần làm nhà ở cho cán bộ chiến sỹ nhà xuất bản báo Công an Nhân dân (tại ô đất có ký hiệu HH2 thuộc khu đô thị mới Phùng Khoang). Dự án HH2 Bắc Hà được đầu tư bởi Công ty CP Xây dựng và Thương mại Bắc Hà, tòa nhà nằm ngay ngã tư Khuất Duy Tiến và Lê Văn Lương, vị trí giao thông thuận lợi bậc nhất.

Chung Cư HH2 Bắc Hà - Chung cư HH2 NXB Công an Nhân dân
Vị trí HH2 - Bắc Hà:
Dự ánHH2 - Bắc Hà nằm trên địa phận xã Trung Văn, quậnNam Từ Liêm, TP. Hà Nội.
- Nằm ở cửa ngõ phía Tây của thành phố tiếp giáp với đường Lương Thế Vinh về phía Nam và Tây Nam
- Phía Tây Bắc giáp với khu luyện tập thể thao Thanh Xuân Bắc
- Dự án hội tụ đầy đủ các yếu tố thuận lợi khi nằm trong hệ thống các tuyến đường hiện đại, thông thoáng nối liền trung tâm thành phố với các khu vực kinh tế, thương mại sầm uất xung quanh
Hạ tầng HH2 - Bắc Hà:
Chung cư HH2 Bắc Hà - Chung cư HH2 NXB Công an Nhân dân hội tụ đầy đủ các yếu tố thuận lợi khi nằm trong hệ thống các tuyến đường hiện đại, thông thoáng nối liền trung tâm thành phố với các khu vực kinh tế, thương mại sầm uất xung quanh.
- Quy mô dự án: (50.000m2)
+ Gồm 2 tòa chung cư 25 tầng với trên 300 căn hộ
+ Tầng 1 đến tầng 3 là trung tâm thương mại, nhà hàng, siêu thị...
+ Tầng 4-25 là căn hộ chung cư

Liên kết vùng tại dự án
Sơ đồ tổng thể HH2 - Bắc Hà
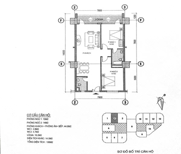
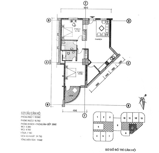
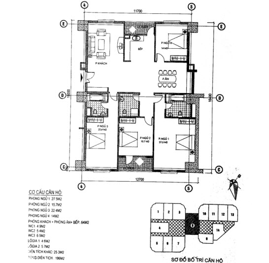
Mặt bằng HH2 - Bắc Hà
- Tầng điển hình
Căn 2 phòng ngủ Căn 3 phòng ngủ Căn hộ 4 phòng ngủ
THƯ VIỆN ẢNH HH2 - Bắc Hà
Tiến độ quý III/2016 (ngày 22/09/2016) HH2 - Bắc Hà
VIDEO Chung cư Bắc Hà Tower - hình ảnh thực tế về Dự Án
Lộ trình thanh toán HH2 - Bắc Hà
Khi mua nhà tại dự án,khách hàng có thể đóng tiền theo 2 cách sau và đều ký trực tiếp chủ đầu tư Bắc Hà
- Đóng 10-20% Hợp đồng góp vốn
- Đóng 30-40% Hợp đồng mua bán
Chủ đầu tư HH2 - Bắc Hà
- Công ty CP Xây dựng và Thương mại Bắc Hà
- Địa chỉ:Hoàng Quốc Việt, Nghĩa Đô, Cầu Giấy, Hà Nội, Việt Nam
- Điện thoại:(04) 37555384
- Email: info@bachaland.com
- WebSite:www.bachaland.com
Công ty CP Xây dựng và Thương mại Bắc Hà chính thức đi vào hoạt động từ năm 2005 với 100% vốn trong nước, công ty hiện là chủ đầu tư của nhiều dự án có qui mô lớn, hiện đại đã và đang được triển khai.
Một số dự án tiêu biểu mà công ty làm chủ đầu tư phải kể đến như dự án HH2, C14, C37... với các hạng mục nhà biệt thự, nhà liền kề, chung cư cao tầng...Sau gần 5 năm xây dựng và trưởng thành, công ty cổ phần xây dựng và thương mại Bắc Hà đã nhanh chóng trở thành một trong những doanh nghiệp hàng đầu, có uy tín lớn trong lĩnh vực kinh doanh phát triển nhà, đầu tư dự án, cao ốc văn phòng, trung tâm thương mại và căn hộ cao cấp.
Với đội ngũ cán bộ lãnh đạo giàu kinh nghiệm, có tầm nhìn, đội ngũ nhân viên ưu tú, năng động, sáng tạo; cùng với đó là đội ngũ cộng tác viên đang làm việc chuyên sâu trong các lĩnh vực chuyên môn, công ty cổ phần xây dựng và thương Mại Bắc Hà đã và đang khẳng định chỗ đứng vững chắc trong lĩnh vực xây dựng và kinh doanh thương mại; tạo dựng được sự tín nhiệm từ phía khách hàng và trở thành đối tác tin cậy đối với nhiều tổ chức, nhà đầu tư nước ngoài tiềm năng đang tìm kiếm cơ hội hợp tác và phát triển tại Việt Nam.
Lĩnh vực hoạt động:
- Kinh doanh phát triển nhà
- Xây dựng, sửa chữa, cải tạo, lắp đặt các công trình dân dụng, công nghiệp, giao thông, thuỷ lợi
- Cải tạo hạ tầng cơ sở; san lấp mặt bằng; thi công
- Kinh doanh vận tải
- Kinh doanh xe ôtô, xe máy
- Kinh doanh nhà hàng, khách sạn
- Kinh doanh siêu thị
Uỷ thác xuất nhập khẩu, tạm tái xuất, xuất nhập khẩu các mặt hàng Công ty kinh doanhTin rao thuộc dự án
Xem tin rao Bán căn hộ chung cư HH2 - Bắc Hà
Xem tin rao Cho thuê văn phòng HH2 - Bắc Hà
Xem tin rao Cho thuê loại bất động sản khác HH2 - Bắc Hà
Dự án cùng khu vực
The Emerald
Ô đất CT08 - Khu đô thị Mỹ Đình - Mễ Trì, phường Mỹ Đình 1, quận Nam Từ Liêm, TP. Hà Nội
Giá từ:Đang cập nhật