Sunshine Riverside
- Loại hình phát triển Căn hộ, Chung cư
- Chủ đầu tư Công ty CP Đầu tư Phú Thượng
- Địa chỉ Phường Phú Thượng, Tây Hồ, Hà Nội
- Tổng diện tích 30.452 m²
- Bàn giao nhà Quý IV/2018
- Giá bán 26 triệu/m²
Thông tin dự án Sunshine Riverside
Sunshine Riverside là dự án căn hộ cao cấp, tinh tế và sang trọng. Đây là một trong những dự án trọng điểm tại quận Nam Thăng Long, TP. Hà Nội của chủ đầu tư nhằm tạo nên một thương hiệu lớn và khẳng định vị thế của thị trường địa ốc. Chung cư được thiết kế mang phong cách cổ điển châu Âu tinh tế và sang trọng sẽ làm hài lòng các khách hàng.
- Tên dự án: Sunshine Riverside
- Chủ đầu tư: Công ty CP Đầu tư Phú Thượng (Sunshine Group)
- Tổng thầu thi công: Công ty CP ADG Holding
- Đơn vị thiết kế: Công ty CP Sunshine - Design
- Đơn vị tư vấn giám sát: Công ty CP CONICO Đầu tư Phát triển Hạ tầng & Tư vấn Xây dựng
- Tổng diện tích dự án: 30.452m2
- Lô đất CT03A-CT
+ Chức năng sử dụng đất: Nhà ở cao tầng, nhà trẻ, trung tâm thương mại
+ Diện tích đất: 9.228m2
+ Diện tích xây dựng: 3.835m2
+ Tổng diện tích sàn: 113.718m2
+ Số tầng cao: Từ 30-33 tầng
+ Tổng số căn hộ: 936 căn (3228 người)
- Lô đất CT03A-TT
+ Chức năng sử dụng đất: Nhà ở thấp tầng
+ Diện tích đất: 11.953m2
+ Diện tích xây dựng: 3.687m2
+ Tổng diện tích sàn: 11.505m2
+ Số tầng cao: 3 tầng
+ Tổng số căn hộ: 168
- Lô đất CT03C
+ Chức năng sử dụng đất: Trường tiểu học
+ Diện tích đất: 4.253m2
+ Diện tích xây dựng: 1.250m2
+ Tổng diện tích sàn: 3.750m2
+ Số tầng cao: 3 tầng
+ Tổng số: 283 học sinh
- Tổng mức đầu tư: 2500 tỷ đồng
- Dự kiến bàn giao: Quý IV/2018

Phối cảnh tổng thể Sunshine Riverside
Vị trí Sunshine Riverside:
Sunshine Riverside tọa lạc tại ô đất CT - 03A - CT (thuộc lô đất CT - 03) Khu đô thị Nam Thăng Long, phường Phú Thượng, quận Tây Hồ, TP. Hà Nội. Dự án nằm ngay chân cầu Nhật Tân phía bờ Nam sông Hồng, khu vực bở Nam (bên bồi) thuộc ngã ba sông Hồng - sông Đuống, nằm trên dải đất Phú Thượng - Nhật Tân. Đây là nơi hộ tụ các yếu tố đẹp về mặt phong thủy.

Vị trí dự án Sunshine Riverside
Hạ tầng Sunshine Riverside:
Tiện ích nội khu
Sunshine Riverside tọa lạc Khu đô thị Nam Thăng Long, bao gồm Tổ hợp Văn phòng, trung tâm thương mại, chung cư cao cấp với nhiều tiện ích theo tiêu chuẩn quốc tế sẽ mang tới cho cư dân tiêu chuẩn sống đẳng cấp.
Toàn bộ dịch vụ, tiện ích cao cấp phục vụ đời sống cư dân đều được tích hợp hiệu quả và thông minh. Đặc biệt là không gian dành cho sinh hoạt cộng đồng rất được chú trọng trong thiết kế và quy hoạch, mang tầm đẳng cấp thế giới.

Các tiện ích tại dự án
Dự án Sunshine Riverside có điểm nhấn độc đáo dễ nhận thấy nhất là trường học quốc tế (tiêu chuẩn 5 sao, liên cấp 1-2) được triển khai xây dựng ngay trong khuôn viên dự án. Tại tầng 1 của các tòa nhà được thiết kế nhà trẻ bên cạnh những tiện ích sinh hoạt như nhà hàng, shophouse...

Các nhà hàng, sophouse tại tầng 1
Một trong những điểm hấp dẫn của dự án là khu phố mua sắm nhộn nhịp với loại hình shophouse. Hình thức này vừa tạo ra tính linh hoạt và đa dạng trong việc cung cấp những loại hình dịch vụ cho cộng đồng cư dân vừa tạo ra những giá trị gia tăng tài sản cho chính những "nhà đầu tư" là các cư dân đang sinh sống tại dự án.
Bên cạnh đó, dự án còn có khu giải trí, vui chơi và thư giãn phức hợp, bao gồm những tiện ích đẳng cấp như sàn tắm nắng, bể ngơi ngoài trời tiêu chuẩn 5 sao, cafe outdoor, spa, fitness... chiếm trọn tầng 3 của cả 3 tòa chung cư được kết nối thông suốt với độ cao phù hợp nhằm tận hưởng không gian khoáng đạt cùng nắng gió sông Hồng.
Tiện ích ngoại khu
Sunshine Riverside nằm ngay sát bờ Nam sông Hồng, gần với đường Võ Chí Công, đây là trục giao thông đối nội và đối ngoại huyết mạch của cửa ngõ phía Đông Bắc TP. Hà Nội, có khổ đường lên tới 60m nối thẳng ra cầu Nhật Tân. Từ dự án, cư dân có thể di chuyển dễ dàng vào trung tâm, ra ngoại ô thành phố hay thẳng tới sân bay quốc tế Nội Bìa chỉ mất 15 phút đi xe.
Chung cư tọa lạc trong tổng thể Khu đô thị Ciputra - một trong các khu đô thị đẳng cấp nhất tại Thủ đô hiện nay, thông qua giá trị thổng thể về chất lượng sống cùng những dịch vụ hoàn hảo. Dự án còn là nơi hội tụ một cộng đồng cư dân giàu có, văn minh, các giá trị tạo hình nên đẳng cấp của một khu an cư đẳng cấp, thượng lưu.

Liên kết vùng tại dự án
Sơ đồ tổng thể Sunshine Riverside
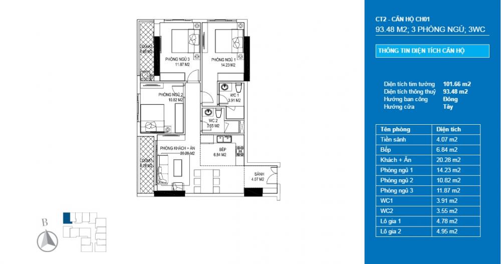
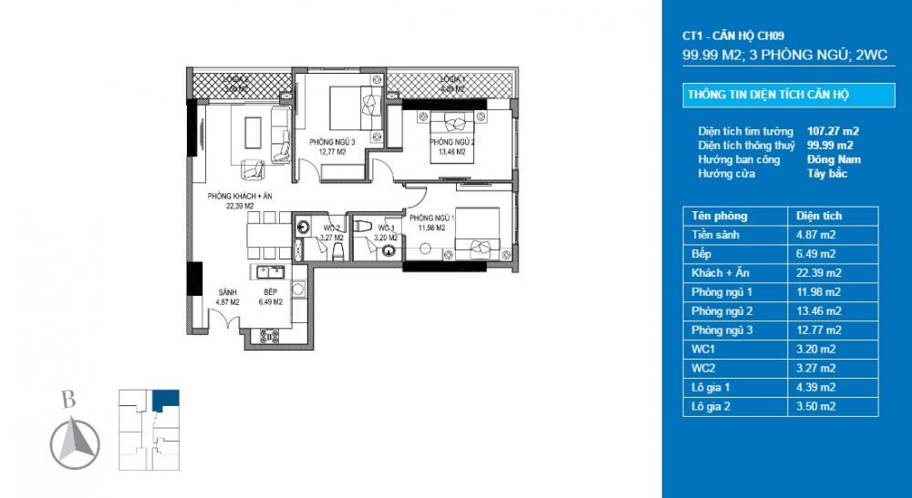
Mặt bằng Sunshine Riverside
- Tòa CT1
- Tòa CT2
- Tòa CT3
Các căn hộ tòa CT1 Các căn hộ tòa CT2 Các căn hộ tòa CT3
THƯ VIỆN ẢNH Sunshine Riverside
Tiến độ quý IV/2016 (ngày 14/11/2016) Sunshine Riverside
Tiến độ quý IV/2016 (ngày 12/12/2016) Sunshine Riverside
Tiến độ quý I/2017 (ngày 31/03/2017) Sunshine Riverside
Tiến độ quý II/2017 (ngày 29/05/2017) Sunshine Riverside
Tiến độ quý III/2017 (ngày 05/07/2017) Sunshine Riverside
VIDEO Sunshine Riverside Phú Thượng, Tây Hồ
Lộ trình thanh toán Sunshine Riverside
Các căn hộ Sunshine Riverside được bán ra với mức giá chỉ từ 26 triệu/2 (đã bao gồm VAT và nội thất).
Dự án Sunshine Riverside có tiến độ thanh toán linh hoạt, chia làm 7 đợt:
- Đợt 1: Đóng 20% giá trị căn hộ khi ký hợp đồng mua bán
- Đợt 2: Đóng 10% giá trị căn hộ khi đổ xong sàn tầng 5
- Đợt 3: Đóng 15% giá trị căn hộ khi đổ xong sàn tầng 15
- Đợt 4: Đóng 15% giá trị căn hộ khi đổ xong sàn tầng 25
- Đợt 5: Đóng 10% giá trị căn hộ khi cất nóc dự án
- Đợt 6: Đóng 25% giá trị căn hộ khi nhận bàn giao nhà
- Đợt 7: Đóng 5% giá trị căn hộ khi nhận bàn giao nhà
Chủ đầu tư Sunshine Riverside
- Công ty CP Đầu tư Phú Thượng
- Địa chỉ:Nhà C35, lô C, tổ 20, cụm 5B An Dương, Phường Yên Phụ, Quận Tây Hồ, Hà Nội
- Điện thoại:0986258393
Công ty CP Đầu tư Phú Thượng có tên giao dịch là PHU THUONG .,JSC. Lĩnh vực hoạt động chính của doanh nghiệp là đầu tư bất động sản.
Công ty CP Đầu tư Phú Thượng được thành lập ngày 26/08/2004 theo giấy phép kinh doanh số 0101528910 cấp ngày 17/09/2004.
Tin rao thuộc dự án
Xem tin rao Bán căn hộ chung cư Sunshine Riverside
Xem tin rao Bán nhà riêng, ngõ, hẻm Sunshine Riverside
Xem tin rao Bán nhà biệt thự, liền kề Sunshine Riverside
Xem tin rao Bán nhà mặt tiền, mặt phố Sunshine Riverside
Xem tin rao Bán đất thổ cư Sunshine Riverside
Xem tin rao Bán loại bất động sản khác Sunshine Riverside
Xem tin rao Cho thuê căn hộ chung cư Sunshine Riverside
Xem tin rao Cho thuê nhà riêng Sunshine Riverside
Xem tin rao Cho thuê nhà mặt phố Sunshine Riverside
Xem tin rao Cho thuê cửa hàng, ki ốt Sunshine Riverside
Xem tin rao Cho thuê kho, nhà xưởng, đất Sunshine Riverside
Xem tin rao Cho thuê loại bất động sản khác Sunshine Riverside
Dự án cùng khu vực
Dự án cùng phân khúc
D’. Le Roi Soleil - Quảng An
Số 69 Xuân Diệu, phường Quảng An, quận Tây Hồ, Hà Nội
Giá từ:60 triệu/m²