The Habitat Bình Dương
- Loại hình phát triển Căn hộ, Chung cư
- Chủ đầu tư Công ty liên doanh TNHH Khu Công Nghiệp Việt Nam Singapore
- Địa chỉ Đường Hữu Nghị, Phường Bình Hòa, Thuận An, Bình Dương
- Giá bán 20 triệu/m²
- Quy mô dự án Gồm 2 blocks cao 16 tầng gồm 267 căn hộ
Thông tin dự án The Habitat Bình Dương
Dự án Khu căn hộ The Habitat Bình Dương nằm trong giai đoạn 1 dự án Khu dân cư Gateway của chủ đầu tư công ty TNHH Phát triển VSIP-Sembcorp Gateway hợp tác với Công ty MC Development Asia. Kế hoạch cho thấy, khu dân cư Gateway có quy mô 4,1 ha sẽ được phát triển qua nhiều giai đoạn trong thời gian 8 năm. Công trình bao gồm khu dân cư có 1.380 căn hộ, tương đương với khoảng 163.800m2 diện tích sàn cùng những tiện ích liên quan.
Khu căn hộ nằm ở vị trí chiến lược ngay tại cổng vào Khu công nghiệp Việt Nam Singapore (VSIP 1) thuộc thị xã Thuận An, tỉnh Bình Dương, cách Tp.HCM khoảng 17km. Từ dự án có thể kết nối dễ dàng đến:
- Sân Golf Sông Bé với 2 phút di chuyển
- AEON Mall Bình Dương với 3 phút di chuyển
- Bệnh viện Quốc tế Miền Đông với 5 phút di chuyển
- Trường trung học Nguyễn Văn Tiết với 5 phút di chuyển
- Lotte Mart Bình Dương với 7 phút di chuyển
- Bệnh viện Quốc tế Hạnh Phúc với 10 phút di chuyển
- Metro Bình Dương với 15 phút di chuyển
- Quận 1 - Tp.HCM với 20 phút di chuyển
- Sân bay Tân Sơn Nhất với 45 phút di chuyển

Phối cảnh dự án căn hộThe Habitat Bình Dương
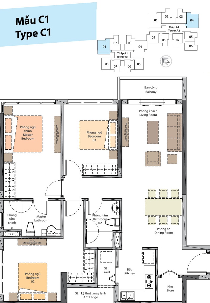
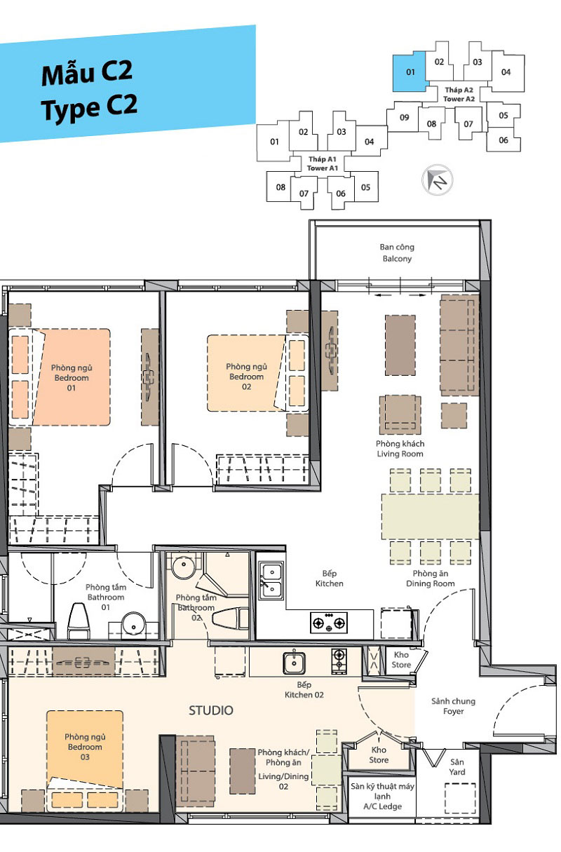
Dự án The Habitat Bình Dương bao gồm 2 blocks cao 16 tầng với 267 căn hộ. Loại căn hộ 3 phòng ngủ có diện tích từ 103m2, loại căn hộ 2 phòng ngủ có diện tích đa dạng từ 58-79m2.
Đặc biệt, đây là dự án đầu tiên đã xuất hiện loại căn hộ kép (Dual Key). Với loại hình căn hộ này, người mua nhà vừa sở hữu 1 căn hộ chính có 2 phòng ngủ và 1 căn hộ studio có 1 phòng khách, phòng ngủ và phòng tắm riêng biệt.
Đế của công trình và khu chung cư The Habitat Bình Dương được định vị để tận dụng tối đa khoảng mở tại tầng trệt giữa khối đế của các giai đoạn dự án, tạo nên không gian trung tâm quan trọng ở toàn bộ công trình. Trục giải trí cũng chính là nơi mọi người có thể thư giãn, họp mặt, đi bộ và tập thể dục, góp phần giúp cư dân nâng cao chất lượng cuộc sống.
Bên cạnh những tiện ích nội khu đạt tiêu chuẩn Green Space của Singapore như khu vực BBQ, hồ bơ, bãi gửi xe, phòng Gym, cư dân dự án chung cư The Habitat Bình Dương còn dễ dàng tiếp cận tới những tiện ích xã hội phục vụ đời sống như bệnh viện, trường học, trung tâm fitness, rạp chiếu phim, trung tâm thương mại... Trong phạm vi từ 3-20 phút di chuyển.
Công trình đang được thực hiện các hạng mục đầu tiên, chủ đầu tư vẫn chưa chính thức công bố ra thị trường. Được biết, giá bán căn hộ tại dự án sẽ từ khoảng 1,3 tỷ đồng/căn trở lên.
Dự án này có những ưu điểm như vị trí gần nơi làm việc (khu công nghiệp VSIP), gần những tiện ích (siêu thị/trung tâm mua sắm AEON Mall The Canary, trường học quốc tế The Canary, sân golf Sông Bé), môi trường sống trong lành do mật độ xanh lớn. Dự án đáp ứng được nhu cầu của một gia đình chuyên gia.
Nếu xem đây là của để dành thì cũng hoàn toàn khả thi bởi có thể cho thuê dài hạn. Đối tượng thuê là những gia đình chuyên gia làm việc trong VSIP.
Vị trí The Habitat Bình Dương:
Khu căn hộ The Habitat Bình Dươngnằm ở vị trí chiến lược ngay tại cổng vào Khu công nghiệp Việt Nam Singapore (VSIP 1) thuộc thị xã Thuận An, tỉnh Bình Dương, cách Tp.HCM khoảng 17km. Từ dự án có thể kết nối dễ dàng đến:
- Sân Golf Sông Bé với 2 phút di chuyển
- AEON Mall Bình Dương với 3 phút di chuyển
- Bệnh viện Quốc tế Miền Đông với 5 phút di chuyển
- Trường trung học Nguyễn Văn Tiết với 5 phút di chuyển
- Lotte Mart Bình Dương với 7 phút di chuyển
- Bệnh viện Quốc tế Hạnh Phúc với 10 phút di chuyển
- Metro Bình Dương với 15 phút di chuyển
- Quận 1 - Tp.HCM với 20 phút di chuyển
- Sân bay Tân Sơn Nhất với 45 phút di chuyển

Vị trí dự ánKhu căn hộ The Habitat Bình Dương
Hạ tầng The Habitat Bình Dương:
Đế của công trình và khu chung cư được định vị để tận dụng tối đa khoảng mở tại tầng trệt giữa khối đế của các giai đoạn dự án, tạo nên không gian trung tâm quan trọng ở toàn bộ công trình. Trục giải trí cũng chính là nơi mọi người có thể thư giãn, họp mặt, đi bộ và tập thể dục, góp phần giúp cư dân nâng cao chất lượng cuộc sống.
Bên cạnh những tiện ích nội khu đạt tiêu chuẩn Green Space của Singapore như khu vực BBQ, hồ bơ, bãi gửi xe, phòng Gym, cư dân dự án chung cư The Habitat Bình Dương còn dễ dàng tiếp cận tới những tiện ích xã hội phục vụ đời sống như bệnh viện, trường học, trung tâm fitness, rạp chiếu phim, trung tâm thương mại... Trong phạm vi từ 3-20 phút di chuyển.




Các tiện ích dự án
Sơ đồ tổng thể The Habitat Bình Dương
Mặt bằng The Habitat Bình Dương
- Mặt bằng tổng
Các căn hộ tầng điển hình
THƯ VIỆN ẢNH The Habitat Bình Dương
Tiến độ quý I/2016 (15/01/2016) The Habitat Bình Dương
Tiến độ quý I/2016 (Ngày 22/03/2016) The Habitat Bình Dương
Tiến độ quý II/2016 (Ngày 07/05/2016) The Habitat Bình Dương
Tiến độ quý II/2016 (Ngày 19/06/2016) The Habitat Bình Dương
Tiến độ quý I/2017 (ngày 10/03/2017) The Habitat Bình Dương
VIDEO The Habitat Binh Duong
Lộ trình thanh toán The Habitat Bình Dương
Căn hộ The Habitat giá bán cực ưu đãi - thanh toán linh hoạt.
Đầy đủ tiện ích - ngân hàng hỗ trợ vay 80% giá trị căn hộ.
Ngoài ra, để giảm gánh nặng tài chính cho người mua thông qua việc hỗ trợ thanh toán trả chậm trong vòng 18 đợt với lãi suất ưu đãi từ chương trình vay vốn định cư của ngân hàng BIDV Bình Dương.
Tiến độ thanh toán:

Chủ đầu tư The Habitat Bình Dương
- Công ty liên doanh TNHH Khu Công Nghiệp Việt Nam Singapore
- Địa chỉ:Số 8 Đại lộ Hữu Nghị, Khu công nghiệp Việt Nam - Singapore, phường Bình Hòa, Thị xã Thuận An, Bình Dương.
- Điện thoại:(0650) 3743898
- Email: marketing@vsip.com.vn
- WebSite:http://www.vsip.com.vn
Công ty liên doanh TNHH Khu Công Nghiệp Việt Nam Singapore chính thức đi vào hoạt động từ ngày07/03/1997. Công ty có trụ sở đặt tại số 8 Đại lộ Hữu Nghị, Khu công nghiệp Việt Nam - Singapore, phường Bình Hòa, Thị xã Thuận An, Bình Dương.
Khu Công Nghiệp Việt Nam-Singapore là dự án được sự hỗ trợ của hai Chính phủ Việt Nam và Singapore, được khởi xướng vào năm 1996 với qui mô là 500 ha, đặt tại huyện Thuận An, tỉnh Bình Dương. Khu Công Nghiệp Việt Nam - Singapore là dự án đầu tư với sự liên kết góp vốn của các đối tác trong và ngoài nước là những tập đoàn có kinh nghiệm và uy tín trong lĩnh vực xây dựng cơ sở hạ tầng và bất động sản như Sembcorp Industries, Ascendas, UOB (Singapore), Mitsubishi Corporation (Japan), KMP Group (Indonesia), và Becamex (Việt Nam).
Tin rao thuộc dự án
Xem tin rao Bán căn hộ chung cư The Habitat Bình Dương
Xem tin rao Bán đất nền dự án The Habitat Bình Dương
Xem tin rao Cho thuê căn hộ chung cư The Habitat Bình Dương
Dự án cùng khu vực
First Home Premium Bình Dương
Đường Đại Lộ Bình Dương, Xã Hưng Định, Thuận An, Bình Dương
Giá từ:12.5 triệu/m²
Dự án cùng phân khúc
First Home Premium Bình Dương
Đường Đại Lộ Bình Dương, Xã Hưng Định, Thuận An, Bình Dương
Giá từ:12.5 triệu/m²