HITTC Building
- Loại hình phát triển Cao ốc văn phòng
- Chủ đầu tư Trung tâm Giao dịch Công nghệ thông tin và Truyền thông Hà Nội
- Địa chỉ 185 Giảng Võ, Ba Đình, Hà Nội
- Tổng diện tích 7.000 m²
- Quy mô dự án 17 tầng nổi và 1 tầng hầm
Thông tin dự ánHITTC Building
HITTC Building nằm trên đường Giảng Võ - một trong những con đường sầm uất và trọng điểm của TP. Hà Nội. Giao thông thuận lợi cùng với cơ sở hạ tầng hiện đại, tòa nhà thích hợp cho các doanh nghiệp thuê làm văn phòng.
Tòa nhà văn phòng HITTC Building được thiết kế theo tiêu chuẩn hạng B gồm 17 tầng nổi và 1 tầng hầm với tổng diện tích cho thuê 4000m2.Ngoài ra, xung quanh tòa nhà có khoảng không trống dành khách hàng hoặc đối tác tới tòa nhà giao dịch có thể đỗ ô tô tiện lợi.Với diện tích mỗi sàn là 500m2 được thiết kế chia nhỏ linh hoạt có thể phù hợp với các công ty có quy mô khác nhau.
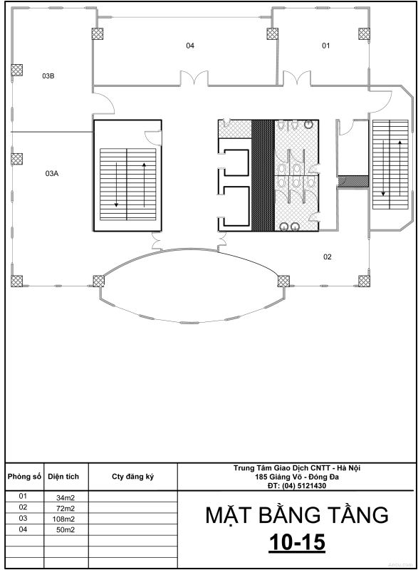
Các diện tích trống đang cho thuê tại HITTC Building: 34m2, 50m2, 72m2, 108m2, 180m2… phù hợp với rất nhiều doanh nghiệp vừa và nhỏ tại Hà Nội.
- Tên dự án:HITTC Building
- Chủđầu tư:Trung tâm Giao dịch CNTT và Truyền thông Hà Nội
- Đơn vị phân phối: Officespace.vn
- Đơn vị quản lý: Trung tâm Giao dịch CNTT và Truyền thông Hà Nội
- Tổng diện tích: 7000m2
- Quy mô: 17 tầng nổi và 1 tầng hầm
-Diện tích sử dụng mỗi tầng: 400m2
- Diện tích tầng hầm: 400m2
- Diện tích đỗ xe: 700m2

Dự án HITTC Building
Vị trí HITTC Building:
HITTC Building tọa lạc tại số 185 Giảng Võ, Ba Đình, Hà Nội - nơi tập trung nhiều cơ quan, trường học, khách sạn và trung tâm thương mại như trung tâm Triển lãm Giảng Võ, khách sạn Horison, Vko Center… Tòa nhà gần các trục đường chính như Lê Văn Lương - Láng Hạ, Nguyễn Chí Thanh - La Thành hay Tôn Đức Thắng - Cát Linh.
Hạ tầng HITTC Building:
Tiện ích nội khu
HITTC Building được trang bị đồng bộ các thiết bị có thương hiệu trong và ngoài nước:
- Hệ thống điều hoà trung tâm hiện đại cho toàn bộ toà nhà
-2 thang máy 1 thang tải trọng 1000kg (15 người) 1 thang tải trọng 750kg (9 người)
- Hệ thống máy phát điện dự phòng trong trường hợp xảy ra sự cố với công suất 320KVA
-Viễn thông: Điện thoại, Internet băng thông rộng
- Hệ thống an ninh: Bảo vệ 24/24 toàn bộ toà nhà với lực lượng bảo vệ chuyên nghiệp và hệ thống camera giám sát
- Hệ thống cứu hoả: Áp dụng tiêu chuẩn chống cháy Việt nam 2622-1995, TCNV 3254-89, TCVN 5738-93
- Hệ thống chiếu sáng của của khu văn phòng được bố trí ánh sáng đồng đều và được kết hợp giữa nguồn ánh sáng nhận tạo và nguồn ánh sáng tự nhiên
- Hành lang, nhà vệ sinh, sảnh chờ theo tiêu chuẩn tòa nhà văn phòng hiện đại

Phòng họp được thiết kế hiện đại

Văn phòng được đầu tư trang thiết bị hiện đại
Tiện ích ngoại khu
Tòa nhà HITTC đặt ngay tại mặt đường rộng rãi nên rất thuận lợi cho các công ty hoặc doanh nghiệp phải giao dịch với khách hàng thường xuyên. Môi trường làm việc chuyên nghiệp, năng động tạo nhiều cơ hội cho các doanh nghiệp lựa chọn thuê tại tòa nhà.
Ngoài ra, xung quanh tòa nhà là khu tập trung của nhiều cơ quan Nhà nước: Tổng cục Thuế Hà Nội, Tạp chí Lao động và Công đoàn… và hệ thống các ngân hàng lớn: Ngân hàng Vietcombank, Techcombank, OceanBank, ACB…
Hơn nữa, tòa nhà văn phòng nằm xung quanh các tuyến phố ẩm thực và cafe nổi tiếng: Phố Núi Trúc, Trần Huy Liệu, Kim Mã… rất thuận tiện cho sinh hoạt của cán bộ công nhân viên cũng như việc tiếp đón đối tác khách hàng tạo nhiều thuận lợi.
Sơ đồ tổng thể HITTC Building
Mặt bằng HITTC Building
- Tầng điển hình
THƯ VIỆN ẢNH HITTC Building
Tiến độ quý IV/2016 (ngày 26/12/2016) HITTC Building
Chủ đầu tư HITTC Building
- Trung tâm Giao dịch Công nghệ thông tin và Truyền thông Hà Nội
- Địa chỉ:K1 Hào Nam, đường Giảng Võ, phường Cát Linh, quận Đống Đa, TP. Hà Nội
- Điện thoại:(04) 35123536
- Email: sotttt@ict-hanoi.gov.vn
Trung tâm Giao dịch Công nghệ thông tin và Truyền thông Hà Nội chính thức đi vào hoạt động từ ngày 15/10/2004. Công ty có trụ sở đặt tại địa chỉK1 Hào Nam, đường Giảng Võ, phường Cát Linh, quận Đống Đa, TP. Hà Nội.
Trung tâmcó chức năng:
- Hỗ trợ kỹ thuật đảm bảo hạ tầng Công nghệ thông tin và viễn thông cho các cơ quan nhà nước;
- Hỗ trợ các tổ chức, doanh nghiệp hoạt động trong lĩnh vực công nghệ thông tin và truyền thông tổ chức giao dịch các sản phẩm; triển khai các hoạt động quảng bá, tuyên truyền, tổ chức các hoạt động về truyền thông.
Nhiệm vụ:
- Trung tâm Giao dịch Công nghệ thông tin và Truyền thông: Đảm bảo hạ tầng kỹ thuật (bao gồm: thiết bị máy chủ, hệ thống mạng, thiết bị kết nối mạng) phục vụ trong việc triển khai cài đặt, vận hành các hệ thống thông tin, cơ sở dữ liệu và các phần mềm của khối Văn phòng Sở.
- Thực hiện các hoạt động tư vấn (tư vấn: Khảo sát, lập dự án, quản lý dự án, lập báo cáo kinh tế kỹ thuật, giám sát thi công, tư vấn đấu thầu …) về lĩnh vực công nghệ thông tin và truyền thông cho các cơ quan và tổ chức theo quy định hiện hành của nhà nước.
- Triển khai các hoạt động đầu tư về lĩnh vực thông tin và truyền thông cho các cơ quan và tổ chức theo quy định hiện hành của nhà nước.
- Cung cấp các dịch vụ hỗ trợ ứng dụng, phát triển công nghệ thông tin cho các cơ quan và tổ chức.
- Tổ chức các hoạt động truyền thông, sự kiện, hội nghị, hội thảo, triển lãm về lĩnh vực công nghệ thông tin; các hoạt động xúc tiến đầu tư về công nghệ thông tin và truyền thông; các hoạt động giao dịch sản phẩm công nghệ thông tin và truyền thông nhằm hỗ trợ các doanh nghiệp công nghệ thông tin và truyền thông trao đổi sản phẩm, phát triển thị trường.
- Tổ chức cho các doanh nghiệp hoạt động trong lĩnh vực thông tin và truyền thông thuê văn phòng làm việc và cung cấp các dịch vụ phục vụ các cơ quan, đơn vị thuê văn phòng.
- Cung cấp các dịch vụ đào tạo trong lĩnh vực công nghệ thông tin và truyền thông theo quy định của pháp luật.
- Trung tâm Giao dịch Công nghệ thông tin và Truyền thông được phép liên doanh, liên kết với các đơn vị, tổ chức khác để thực hiện nhiệm vụ được giao theo quy định của pháp luật và cơ chế chính sách của thành phố. Việc liên doanh, liên kết với các đơn vị hoặc tổ chức khác phải được sự đồng ý của Sở Thông tin và Truyền thông.
- Duy trì và phát triển trang thông tin điện tử “Văn hiến Thăng long Hà Nội”.
- Quản lý về tổ chức, công chức, viên chức, tài chính, tài sản, hồ sơ, tài liệu của Trung tâm Giao dịch CNTT&TT theo quy định của Pháp luật và phân cấp của Sở Thông tin và Truyền thông Hà Nội.
- Thực hiện các nhiệm vụ khác do Giám đốc Sở Thông tin và Truyền thông và UBND thành phố giao.