Tòa nhà Vinahud

5
Tòa nhà Vinahud
Tỷ lệ: 5 (93%) 68 votes
.Đánh giá của bạn
  • Loại hình phát triển Cao ốc văn phòng
  • Chủ đầu tư Công ty CP đầu tư phát triển nhà và đô thị VINACONEX
  • Địa chỉ Đường Trung Yên 9, Phường Trung Hòa, Cầu Giấy, Hà Nội
  • Tổng diện tích 1.300 m²
  • Diện tích xây dựng 849 m²
  • Mật độ xây dựng 65%

Thông tin dự án Vinahud

Tòa nhà Vinahud nằm trong Khu đô thị Nam Trung Yên, quận Cầu Giấy, Hà Nội. Dự án có vị trí thuận lợi, nằm ngay ngã tư giữa đường Trung Yên 3 và Trung Yên 9, lấy đường Trung Yên 9 chạy dọc nằm phía Tây khu đất làm hướng chủ đạo, đảm bảo mặt tiền khu nhà được thông thoáng, giao thông thuận tiện. Hai bên khối nhà có các khoảng sân riêng tạo thông thoáng cho tòa nhà và là lối cho xe lên xuống tầng hầm.

Các chỉ tiêu chính của tòa nhà:

- Tổng diện tích khu đất: 1.300m2
-Diện tích xây dựng công trình: 849m2
+ Khối 9 tầng: 435m2
+ Khối 5 tầng: 414m2
- Tổng diện tích sàn xây dựng: 5.985m2
+ Khối 9 tầng: 3.915m2
+ Khối 5 tầng: 2.070m2
- Tầng hầm: 1 tầng
- Mật độ xây dựng: 65%
- Cấp công trình: II
- Bậc chịu lửa: 1


Tổng quan tòa nhà Vinahud

Tòa nhà Vinahud-0 Tòa nhà Vinahud-1 Tòa nhà Vinahud-2

Vị trí Tòa nhà Vinahud:

Tòa nhà Vinahud nằm trong khu đô thị Nam Trung Yên, Quận Cầu Giấy, Hà Nội. Với vị trí thuận lợi, nằm ngay ngã tư giữa đường Trung Yên 3 và Trung Yên 9. Lấy đường Trung Yên 9 chạy dọc nằm phía Tây khu đất làm hướng chủ đạo, đảm bảo mặt tiền khu nhà được thông thoáng, giao thông thuận tiện. Hai bên khối nhà có các khoảng sân riêng tạo thông thoáng cho tòa nhà và là lối cho xe lên xuống tầng hầm.

Cách đường trục chính Trung Hòa 50m, từ vị trí tòa nhà thuận tiện di chuyển ra các trục đường lớn như Trần Duy Hưng, Phạm Hùng, Láng Hòa Lạc.
Ranh giới khu đất:
- Phía Tây Nam : giáp đường Trung Yên 9
- Phía Tây Bắc : giáp đường Trung Yên 3
- Phía Đông Bắc: giáp Cục cảnh sát bảo vệ và hỗ trợ tư pháp
- Phía Đông Nam: giáp khu dân cư


Vị trí dự án Vinahud

Hạ tầng Tòa nhà Vinahud:

- Công trình được thiết kế với tỉ lệ hình khối hợp lý, hình thức kiến trúc hiện đại tạo cảnh quan cho khu vực. Các chức năng của tòa nhà được tổ hợp liên hoàn khép kín và sử dụng hợp lý.

- Mặt bằng, mặt đường được thiết kế đơn giản, phù hợp với kiến trúc văn phòng làm việc. Hình khối và đường nét mang phong cách hiện đại, phù hợp với kiến trúc hiện có của một khu đô thị mới.

- Tổ chức giao thông thuận tiện, tận dụng tối đa diện tích sử dụng. Hệ thống giao thông gồm thang máy, thang bộ đáp ứng các yêu cầu kỹ thuật theo tiêu chuẩn Việt Nam và đảm bảo thoát người thuận lợi, an toàn và nhanh chóng khi xảy ra sự cố hoả hoạn, động đất...

- Tòa nhà sử dụng vật liệu kính hiện đại, kiến trúc độc đáo, vị trí thoáng, tầm nhìn rộng.

Sơ đồ tổng thể Tòa nhà Vinahud

Tòa nhà Vinahud

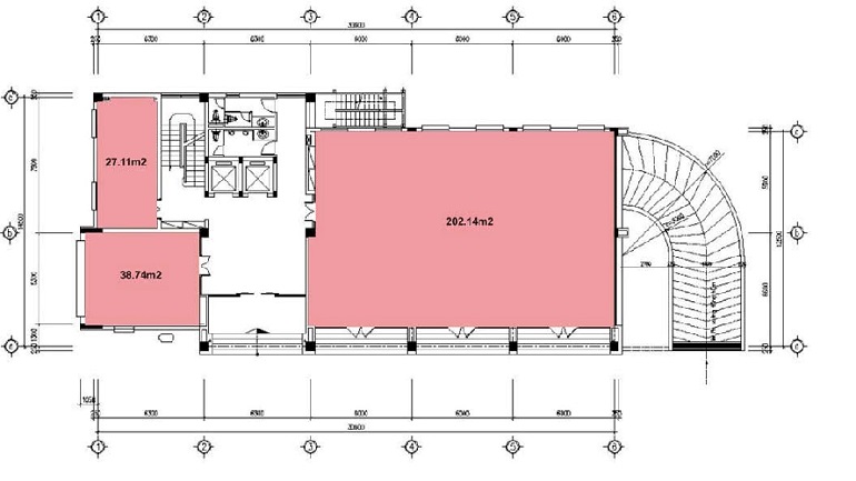
Mặt bằng Tòa nhà Vinahud

  • Tầng điển hình
Tầng điển hình

THƯ VIỆN ẢNH Tòa nhà Vinahud

Văn phòng Vinahud
Văn phòng Vinahud
Văn phòng Vinahud 1 Văn phòng Vinahud 2 Văn phòng Vinahud 3

Chủ đầu tư Tòa nhà Vinahud

  • Công ty CP đầu tư phát triển nhà và đô thị VINACONEX
  • Địa chỉ:Đường Trung Yên 9, phường Trung Hòa, quận Cầu Giấy, TP. Hà Nội
  • Điện thoại:(04) 37835757
  • Email: contact@vinahud.com.vn
  • WebSite:www.vinahud.com.vn

Công ty CP Đầu tư phát triển nhà và Đô thị Vinaconex (VINAHUD) được thành lập chính thức từ năm 2007, với tiền thân từ Ban quản lý Dự án đầu tư xây dựng phát triển nhà và đô thị Vinaconex, trực thuộc Tổng công ty CP Xuất nhập khẩu và xây dựng Việt Nam Vinxaconex.

Ngành nghề kinh doanh:

- Quản lý, khai thác các dịch vụ trong khu đô thị, khu nhà ở, khu dân cư: dịch vụ ăn uống, vui chơi giải trí, thẻ dục thể thao (trừ loại hình vui chơi giải trí Nhà nước cấm)

- Tư vấn đầu tư, tư vấn lập và quản lý dự án (chỉ thiết kế trong phạm vi các thiết kế đã đăng ký kinh doanh)

- Tư vấn thiết kê tổng mặt bằng, kiến trúc nội ngoại thất đối với các công trình dân dụng và công nghiệp

- Tư vấn giám sát lắp đặt các thiết bị điện, thiết bị công nghệ điện công trình dân dụng

- Tư vấn giám sát xây dựng và hoàn thiện công trình dân dụng và công nghiệp

- Xây dựng, phát triển các công trình, dự án: dân dụng, công nghiệp, hạ tầng cơ sở, cấp thoát nước, xử lý chất thải, môi trường đô thị, nhà ở, dân cư, điện, nước, điều hoà không khí

- Kinh doanh xuất nhập khẩu máy móc, vật tư thiết bị phục vụ cho các công trình dân dụng, công nghiệp và hạ tầng kỹ thuật, hạ tầng cơ sở

- Sản xuất và buôn bán vật liệu xây dựng

- Thực hiện các dịch vụ cung cấp, lắp đặt, sửa chữa , bảo hành điện lạnh, thiết bị phòng chống cháy, nổ, thang máy

- Kinh doanh dịch vụ giao nhận và vận chuyển hàng hoá theo hợp đồng hoặc theo tuyến cố định

- Kinh doanh siêu thị

- Đầu tư kinh doanh bất động sản

- Đầu tư xây dựng và quản lý các khu đô thị, khu nhà ở, khu công nghiệp, khu dân cư

- Hoàn thiện nội ngoại thất

- Lập và thẩm tra dự án đầu tư (chỉ thiết kế trong phạm vi các thiết kế đã Đăng ký kinh doanh); Tư vấn lựa chọn nhà thầu; Tư vấn thiết bị công nghệ mới và thiết bị tự động hoá

- Xây dựng công trình đường bộ

- Xây dựng công trình thủy lợi, thủy điện

- Xây dựng công trình khu công nghệ cao; công trình ngầm

- Xây dựng công trình công ích

- Nhận thầu xây lắp các công trình xây dựng dân dụng và công nghiệp tại nước ngoài

- Phá dỡ và chuẩn bị mặt bằng trong xây dựng

- Lắp đặt hệ thống điện.

Tin rao thuộc dự án

Xem tin rao Bán căn hộ chung cư Tòa nhà Vinahud

Xem tin rao Cho thuê căn hộ chung cư Tòa nhà Vinahud

Xem tin rao Cho thuê văn phòng Tòa nhà Vinahud

Dự án cùng khu vực

Tòa nhà 169 Nguyễn Ngọc Vũ

Tòa nhà 169 Nguyễn Ngọc Vũ

169 Nguyễn Ngọc Vũ, Phường Trung Hòa, Cầu Giấy, Hà Nội

Giá từ:Đang cập nhật

Tòa nhà văn phòng Công ty 789

Tòa nhà văn phòng Công ty 789

Số 147 Hoàng Quốc Việt, Phường Nghĩa Đô, Cầu Giấy, Hà Nội

Giá từ:Đang cập nhật

PVI Tower

PVI Tower

Đường Trần Thái Tông, Phường Yên Hòa, Cầu Giấy, Hà Nội

Giá từ:Đang cập nhật

Xem thêm

Tiện ích
Xem phong thủy theo tuổi
Tìm kiếm dự án BĐS