Khu công nghiệp Song Khê - Nội Hoàng
- Loại hình phát triển Khu Công nghiệp
- Địa chỉ Xã Nội Hoàng, Yên Dũng, Bắc Giang
Thông tin tổng quan dự ánKCN Song Khê - Nội Hoàng
KCN Song Khê - Nội Hoàng được đầu tư bởiCông ty CP Đầu tư Kinh doanh Nhà Hoàng Hải và Công ty CPcông nghiệp Tàu Thủy Bắc Giang. Dự án tọa lạc trên khu đất rộng 180ha tại huyện Yên Dũng, tỉnh Bắc Giang và còn có thể mở rộng tới hơn 300ha.

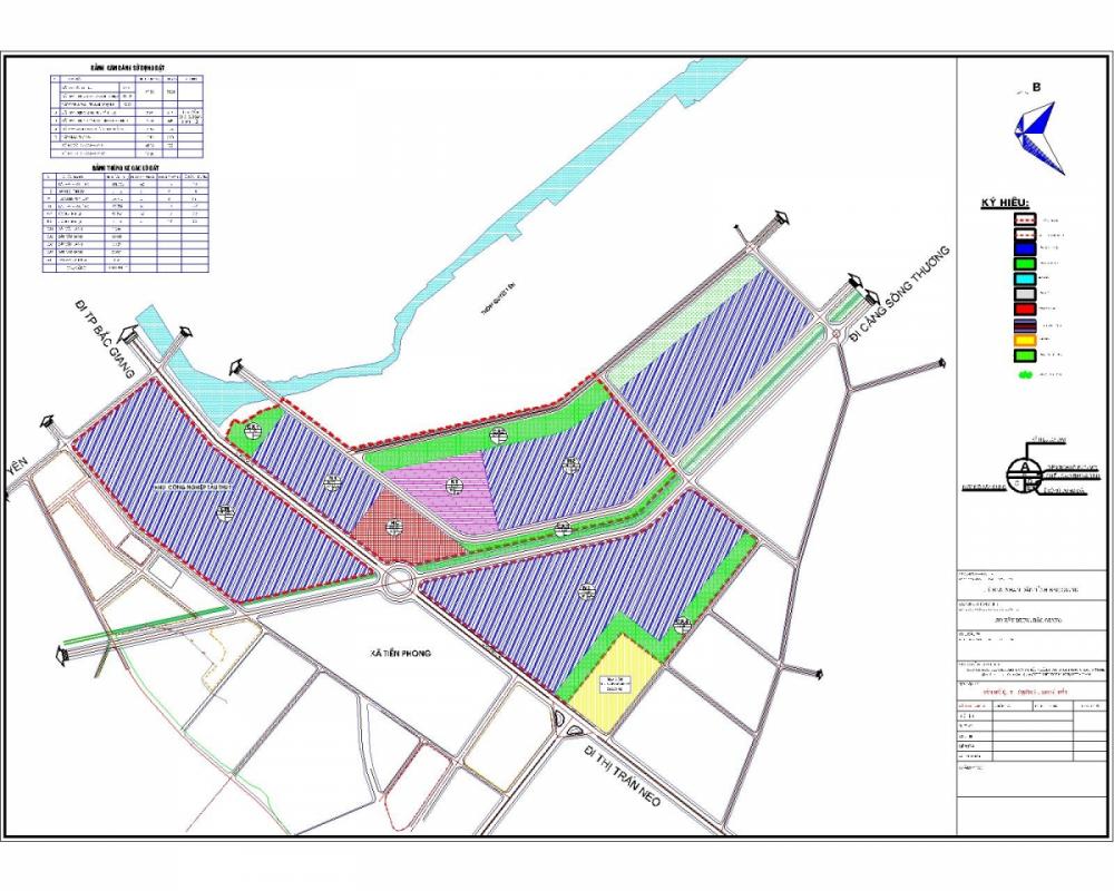
Bản đồ quy hoạch KCN Song Khê - Nội Hoàng (phía Bắc)

Bản đồ quy hoạch KCN Song Khê - Nội Hoàng (phía Nam)
Vị trí Khu công nghiệp Song Khê - Nội Hoàng:
Khu công nghiệp Song Khê – Nội Hoàng nằm trên địa phận xã Nội Hoàng,huyện Yên Dũng, tỉnh Bắc Giang,ngay gầnQuốc lộ 1A mới Hà Nội – Lạng Sơn, 5km đếnTP. Bắc Giang 5 km; 45km đến sân bayNội Bài; 45km đến TP. Hà Nội; 115km đếncửa khẩu Hữu Nghị; 125km đếncảng nước sâu Cái Lân, Quảng Ninh và 125km đếncảng Hải Phòng.
Hạ tầng Khu công nghiệp Song Khê - Nội Hoàng:
KCN Song Khê - Nội Hoàngđược đầu tư hoàn chỉnh cả về hạ tầng kỹ thuật và hệ thống đường bộ: hệ thốngthoát nước mưa, trạm xử lý,thu gom nước thải, dịch vụngân hàng, bưu chính viễn thông, cảng nội địa IDC, hệ thống cung cấp điện, trạm điện 110/22KV,hệ thống nước đến hàng rào doanh nghiệp.
Sơ đồ tổng thể Khu công nghiệp Song Khê - Nội Hoàng
THƯ VIỆN ẢNH Khu công nghiệp Song Khê - Nội Hoàng