FLC Premier Park Đại Mỗ
- Loại hình phát triển Khu đô thị mới
- Địa chỉ Đường 70, Xã Đại Mỗ, Nam Từ Liêm, Hà Nội
- Diện tích xây dựng 64.077 m²
- Mật độ xây dựng 30%
- Bàn giao nhà Quý II/2019
Thông tin tổng quan dự ánFLC Premier Park Đại Mỗ
FLC Premier Park Đại Mỗ là khu đô thị mới nhất của tập đoàn FLCtại Hà Nội. Dự án tọa lạcngay mặt đường tỉnh lộ 70A mới, gần trục đường Lê Quang Đạo kéo dài, sát với Khu TTTM Aoen Mall Hà Đông và KĐT FLC Garden City -hứa hẹn sẽ tạo nên một không gian sống xanh, quần thể đô thị thương mại tiện nghi,đẳng cấpnhất phía Tây Hà Nội mà không dự án nào có được.
- Tên dự án: FLC PREMIER PARK
- Chủ đầu tư: Tập đoàn FLC
- Tổng diện tích dự án: 64.077 m2
+ Đất nhà liền kề: 8.968 m2
+ Đất cho cao tầng: 17.609 m2
+ Đất biệt thự song lập: 6.533 m2
- Mật độ xây dựng: 30%
- Quy mô:91 căn liền kề, 54biệt thự, nhà trẻ, nhà cao tầng, nhà ở xã hội
- Thời gian hoàn thành dự kiến:Quý II/2019
- Chức năng: Biệt thự, liền kề, nhà phố thương mại, Trung tâm thương mại, Căn hộ, dịch vụ và văn phòng,Căn hộ khách sạn,.…
- Tiện ích:Siêu thị, spa, yoga, Nhà trẻ, Khu sinh hoạt cộng đồng…
- Hình Thức Sở Hữu: Lâu dài

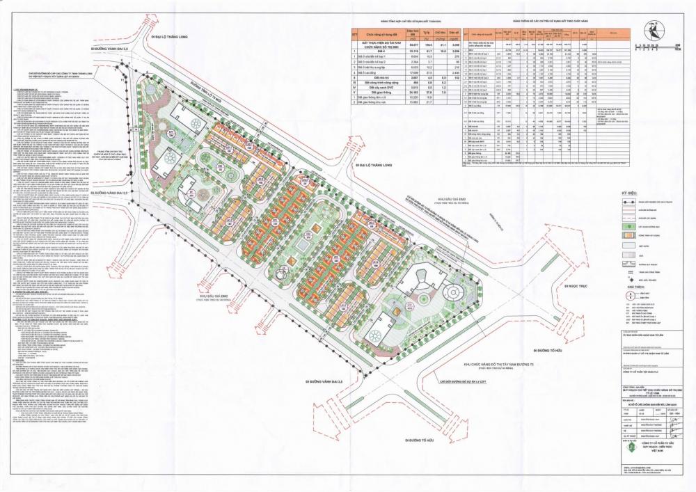
Bản đồ quy hoạch tổng thể dự ánFLC Premier Park Đại Mỗ
Vị trí FLC Premier Park Đại Mỗ:
FLC PREMIER PARK Lê Quang Đạo nằm tại cửa ngõ phía Đông Nam của thủ đô Hà Nội, liên kết vùng thuận tiện, cách BigC Thăng Long chỉ 2km, cách trung tâm quận Cầu Giấy 3km, cách đường Lê Văn Lương kéo dài chỉ 1,5km,.. Đặc biệt, tiếp giáp với Khu Đô Thị Vinhome Mễ Trì và nhiều khu đô thị lân cận..
Với mật độ chỉ 2 chung cư với gần 500 cư dân cùng với tổng 145 lô biệt thực liền kề và shophouse có thể coi là mật độ hết sức lý tưởng, để cư dân tại FLC PREMIER PARK Lê Quang Đạo có thể hoàn toàn yên tâm về vấn đề giao thông nội bộ thuận tiện. Bên cạnh đó, dự án còn được mở rộng đường thông trực tiếp sang tuyến được huyết mạch Lê Quang Đạo kéo dài, nội bộ đường dự án 12m – 18m. Tiện ích dự án gồm đất nhà trẻ, vườn cây xanh, khu trung tâm thương mại….
Phía Bắc: giáp đường 70A và UBND phường Đại Mỗ
Phía Tây: tiếp giáp KĐT FLC Garden City và Aoen Mall Hà Đông
Phía Đông: giáp trục đường Lê Quang Đạo kéo dài và KĐT Louis City
Phía Nam: giáp dự án khu trung tâm chỉ huy cán bộ chiến sỹ B32 và khu dân cư sinh

Vị trí dự án
Hạ tầng FLC Premier Park Đại Mỗ:
Tiện ích
Liền kề FLC Premier Park Đại Mỗ tích hợp đồng bộ hệ thống công viên cây xanh, sân vườn, trung tâm chăm sóc sức khỏe Spa, Gym, trung tâm mua sắm, nhà hàng...giúp cư dân tận hưởng tiện nghi của một khu biệt thự liền kề cao cấp trong môi trường sống gần gũi với thiên nhiên.
Liên kết vùng dự án
- Gần trường mầm non, tiểu học, THCS Đại Mỗ,chuyên Lương Thế Vinh,THPT chuyên Nguyễn Huệ, ĐH Hà Nội,Học viện An ninh nhân dân,ĐH Kiến trúc,…
- GầncácKĐT lớn:FLC Garden City,Parkcity,Vinhomes Thăng Long, Khu vui chơi Thiên đường Bảo Sơn,Louis City,…
- Gần Bến xe Mỹ Đình, đường sắt Cát Linh–Hà Đông, TTTM Big C và Metro Hà Đông
- Gần bệnh viện K, viện 103,viện bỏng,bệnh viện Đa khoa Hà Đông…
Sơ đồ tổng thể FLC Premier Park Đại Mỗ
THƯ VIỆN ẢNH FLC Premier Park Đại Mỗ
Lộ trình thanh toán FLC Premier Park Đại Mỗ
Giá bán buôn đã gồm chiết khấu ưu đãi:
- Liền kề: 65- 70 triệu đồng/m2
- Shophouse mặt đường 30m: 95 - 100 triệu đồng/m2
- Biệt thự song lập: 56 - 60 triệu đồng/m2
Giá bán không áp dụng cho lô góc
Khách hàng được tự xây dựng trong thời hạn 2-3 năm
Giá bán lẻ: Không được hưởng chiết khấu ưu đãi
- Liền kề - biệt thự: 75 - 80 triệu đồng/m2
- Shophouse: 105 - 120 triệu đồng/m2
- Giá niêm yết CĐT 65 triệu đồng/m2 (đãgồm hoàn thiện hạ tầng và VAT )
Tiến độ thanh toán
- Đợt 1: Đặt cọc khóa căn 30 triệu:
- Đợt 2: Thanh toán 50% tiền đất khi ký HĐ vay vốn.
- Đợt 3: Thanh toán 50% tiền đất, ký HĐMB và nhận bàn giao đất (sau đợt 1: 60 ngày)
Chủ đầu tư FLC Premier Park Đại Mỗ
Tin rao thuộc dự án
Xem tin rao Bán căn hộ chung cư FLC Premier Park Đại Mỗ
Xem tin rao Bán nhà biệt thự, liền kề FLC Premier Park Đại Mỗ
Xem tin rao Bán nhà mặt tiền, mặt phố FLC Premier Park Đại Mỗ
Xem tin rao Bán đất nền dự án FLC Premier Park Đại Mỗ
Dự án cùng khu vực
Vinhomes Green Bay Mễ Trì
Số 7 Đại Lộ Thăng Long, phường Mễ Trì, quận Nam Từ Liêm, TP. Hà Nội
Giá từ:37.8 triệu/m²