Han River Village
- Loại hình phát triển Khu đô thị mới
- Chủ đầu tư Tập đoàn Sun Group
- Địa chỉ Phường Hòa Quý, Ngũ Hành Sơn, Đà Nẵng
- Tổng diện tích 5.090.000 m²
- Mật độ xây dựng 45%
- Giá bán 6.1 triệu/m²
- Quy mô dự án Gồm 1900 lô đất biệt thự, 7000 lô đất nhà liền kề
Thông tin dự án Han River Village
Dự án Han River Village là khu đô thị sinh thái tại Đà Nẵng của chủ đầu tư Sun Group với4 mặt giáp sông, chỉ cách biển 1km. Dự án nằm ngay tại phường Hòa Quý, quận Ngũ Hành Sơn, thuộc khu trung tâm của chiến lược phát triển TP. Đà Nẵng về phía Nam.
Khu đô thị sinh thái chỉ các sân bay 4km, đây là điểm kết nối với những khu du lịch, giải trí, vui chơi hấp dẫn tại Đà Nẵng như khu du lịch Ngũ Hành Sơn, làng Đại học, làng thể thao,... Han River Village cũng là khu đô thị biệt thự sinh thái, quần thể du lịch sông nước và công viên văn hóa đầu tiên của "thành phố đáng sống nhất Việt Nam".

Phối cảnh tổng thể Han River Village
Vị trí Han River Village:
Khu đô thị sinh thái Han River Village nằm gữa trung tâm TP. Đà Nẵng, được bao bọc xung quanh 4 mặt sông nước với những đầm sen tuyệt đẹp. Cổng vào dự án là đường Nguyễn Phước Lan ngay sau lưng siêu thị Metro nối dài qua cầu Trung Lương xuyên thẳng cầu số 2 đến đường Mai Đăng Chơn, cầu số 2 thẳng ra bãi tắm biển công cộng (ngay cạnh Resort Hyatt). Khu đô thị sinh thái ôm trọn xung quanh dự án là 5 ngọn núi Ngũ hành với phong cảnh sơn thủy hữu tình.

Vị trí Han River Village
Hạ tầng Han River Village:
Tiện ích tại Han River Village
- Toàn bộ dự án được thiết kế điện ngầm
- Hệ thống giao thông giao thông đường 7.5m, 10.5m, 20.5m, 40m
- Toàn bộ cột đường là cột thép sang trọng, đẳng cấp
- Khoảng cách đối lưng giữa 2 nhà là 2.5m
- Hạ tầng hoàn thiện 80%

Liên kết vùng tại dự án
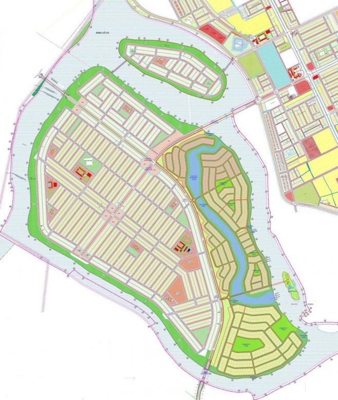
Sơ đồ tổng thể Han River Village
Mặt bằng Han River Village
- Sơ đồ phân lô
THƯ VIỆN ẢNH Han River Village
VIDEO Han River Village
Lộ trình thanh toán Han River Village
Giá bán tại dự án Han River Village
- B2-28: 6.1-7 triệu/m2
- B2-29: 6.3-6.6 triệu/m2
- B2-30: 6.5-6.7 triệu/m2
- B2-33: 6.4-6.9 triệu/m2
- B2-34: 6.5-7.4 triệu/m2
Tiến độ thanh toán tại dự án:
- Thanh toán 2 đợt: Lần 1 đặt cọc 150 triệu, lần 2 thanh toán 100% tổng số tiền
- Hỗ trợ vay ngân hàng đến 70% tổng giá trị lô đất
- Chiết khấu 10% với các khách hàng thanh toán trước ngày 20/5/2016
Chủ đầu tư Han River Village
- Tập đoàn Sun Group
- Địa chỉ:Tầng 7 Tòa nhà ACB, 218 Bạch Đằng, phường Phước Ninh, quận Hải Châu, TP. Đà Nẵng
- Điện thoại:(0511) 3819181
- Email: admin@sungroup.com.vn
- WebSite:www.sungroup.com.vn
Tập đoàn Sun Group được thành lập tại Việt Nam năm 2007. Công ty có trụ sở đặt tại địa chỉ tại tầng 7 Tòa nhà ACB, 218 Bạch Đằng, phường Phước Ninh, quận Hải Châu, TP. Đà Nẵng.
Là một doanh nghiệp trẻ tại Việt nam hoạt động theo mô hình tập đoàn, gồm trên 20 đơn vị thành viên với hơn 1500 cán bộ nhân viên, những con người trẻ tuổi đầy năng lực và nhiệt huyết; Sun Group Vietnam đã chứng tỏ mình là một doanh nghiệp hàng đầu với rất nhiều dự án qui mô lớn tại cả 3 miền Bắc - Trung - Nam.
Tập đoànSun Grouphoạt động trong lĩnh vực: đầu tư xây dựng, bất động sản, thương mại, du lịch và dịch vụ ... Hiện nay, tập đoàn đang triển khai nhiều dự án xây dựng với quy mô lớn tại Hà Nội và Đà Nẵng như: đầu tư xây dựng Building, Hotel, xây dựng các khu du lịch sinh thái …
Tin rao thuộc dự án
Xem tin rao Bán nhà biệt thự, liền kề Han River Village
Xem tin rao Bán nhà mặt tiền, mặt phố Han River Village
Xem tin rao Bán đất nền dự án Han River Village
Xem tin rao Bán loại bất động sản khác Han River Village
Xem tin rao Cho thuê căn hộ chung cư Han River Village
Xem tin rao Cho thuê văn phòng Han River Village
Xem tin rao Cho thuê kho, nhà xưởng, đất Han River Village
Xem tin rao Mua đất nền dự án Han River Village
Xem tin rao Bán đất Han River Village
Dự án cùng khu vực
Khu đô thị Nam Cầu Tuyên Sơn
Đường Mỹ Đa Tây 5, Phường Khuê Mỹ, Ngũ Hành Sơn, Đà Nẵng
Giá từ:8 triệu/m²
Dự án cùng phân khúc
Khu đô thị Nam Cầu Tuyên Sơn
Đường Mỹ Đa Tây 5, Phường Khuê Mỹ, Ngũ Hành Sơn, Đà Nẵng
Giá từ:8 triệu/m²