Sarah Thảo Điền
- Loại hình phát triển Khu đô thị mới
- Chủ đầu tư Công ty TNHH Hoàn Cầu
- Địa chỉ Số 200-202 Nguyễn Văn Hưởng, Thảo Điền, quận 2, Tp.HCM
- Tổng diện tích 9.125 m²
- Giá bán 38.8 triệu/m²
- Quy mô dự án Gồm 17 căn biệt thự và khu căn hộ dịch vụ cho thuê
Thông tin biệt thự Sarah Thảo Điền
Sarah Villas Riverview là khu biệt thự cao cấp nằm trong khu Thảo Điền, gồm các căn biệt thự cao cấp, chung cư thương mại 5 tầng nhà hàng 5 sao, villa sông. Dự án gần siêu thị Big C, Metro, Parkson, trường quốc tế, khách sạn, nhà hàng, quy tụ đầy đủ những tiện ích cao cấp. Khu đất tọa lạc trên trục đường Nguyễn Văn Hưởng lộ giới 20m nên rất thuận lợi cho thông tin liên lạc và giao thông.
- Tên chính thức: Biệt thự Sarah Thảo Điền
- Chủ đầu tư: Công ty CP Sao Sáng Sài Gòn (thuộc tập đoàn Hoàn Cầu)
- Đơn vị phát triển dự án: Sài Gòn Land
- Quy mô: 9.124,8m2
- Số lượng biệt thự: 17 căn biệt thự
- Diện tích đất: 276-466,9m2
- Biệt thự: Gồm hầm, trệt, 2 lầu
- Diện tích sàn: 464-728m2

Phối cảnh biệt thự Sarah Thảo Điền
Vị trí Sarah Thảo Điền:
Khu biệt thự Sarah Thảo Điền tọa lạc tại số 200-202 Nguyễn Văn Hưởng, phường Thảo Điền, quận 7, Tp.HCM. Dự án view sông là nơi nghỉ dưỡng cao cấp, nằm trong đặc khu Thảo Điền, liền kề villas, trường học quốc tế, tuyến Metro An Phú (số 7), quận 1.

Vị trí dự ánSarah Thảo Điền
Hạ tầng Sarah Thảo Điền:
Dự án Sarah Thảo Điền tọa lạc trong khu cao cấp quận 2 với không gian biệt thự cao cấp hiện hữu kết hợp với không gian xanh mát. Tại dự án, cư dân sẽ được sống trong một môi trường xanh mát với sông nước, cây cối bao quanh - một nơi hội tụ đầy đủ tiện nghi,gần trục giao thông chính, trung tâm mua sắm, tuyến tàu điện cao tốc,... vô cùng thuận tiện cho cuộc sống hiện đại .
Sơ đồ tổng thể Sarah Thảo Điền
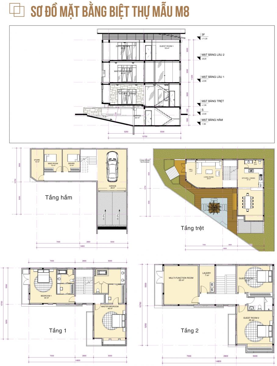
Mặt bằng Sarah Thảo Điền
- Mặt bằng tổng thể
Các căn biệt thự
THƯ VIỆN ẢNH Sarah Thảo Điền
Tiến độ quý II/2016 (ngày 01/05/2016) Sarah Thảo Điền
VIDEO Sarah Riverview | Khu biệt thự cao cấp ven sông (Thảo Điền - Quận 2)
Lộ trình thanh toán Sarah Thảo Điền
Các căn biệt thự Sarah Thảo Điền có giá bán 21,5 tỷ/căn (đã bao gồm VAT và chưa chiết khấu).
- Chiết khấu 05% tiền mặt cho 10 căn đầu tiên
+ Khi ký hợp đồng mua bán (CK 3%)
+ Khi nhận nhà (CK 2%)
+ Khách hàng vay tới 65% ngay khi ký hợp đồng mua bán (hỗ trợ lãi vay 2% và CK 5%)
+ Cơ hội trúng xe Audi A7 (3.5 tỷ), tỷ lệ 1:17
- Dự án được ngân hàng NamA Bank hỗ trợ về mặt tài chính
Chủ đầu tư Sarah Thảo Điền
- Công ty TNHH Hoàn Cầu
- Địa chỉ:Lầu 9, tòa nhà Nam Á Tower, 201-203 Cách Mạng Tháng 8, phường 4, quận 3, Tp.HCM
- Điện thoại:(08) 38329897
- Email: info@hoancau.com
- WebSite:www.hoancaugroup.com.vn
Công ty TNHH Hoàn Cầu thành lập và phát triển cũng là 17 năm Hoàn Cầu nhịp bước cùng những đổi thay của nền kinh tế nước nhà. Từ những khó khăn của buổi đầu mở cửa,Việt Nam giờ đây đã trở thành một trong những nền kinh tế có sức thu hút đầu tư mạnh mẽ nhất.
Trong những khó khăn ban đầu, Hoàn Cầu đã không ngừng nỗ lực phát triển, và giờ đây khi những vận hội mới đang mở ra, Hoàn cầu sẽ vươn xa hơn nữa. Hoàn Cầu không chỉ là nơi tạo ra những công trình chắc chắn thiết thực, hữu ích, mà chúng tôi còn là những người góp phần làm thay đổi diện mạo của đất nước.
Với sự tích lũy kinh nghiệm trong nhiều năm, công ty thấu hiều tầm quan trọng của việc tạo ra những công trình, sản phẩm và dịch vụ với chất lượng hoàn hảo, mang lại giá trị đích thực và nâng tầm cho cuộc sống của quý khách hàng. Song song đó, Hoàn Cầu còn mang lại những công trình với tiến độ nhanh nhất, những sản phẩm với giá cả cạnh tranh nhất và những dịch vụ tuyệt vời nhất. Không ngừng vươn xa chính là lời khẳng định và là cam kết của Hoàn Cầu cho những gì công ty đã, đang và sẽ thực hiện.
Lĩnh vực hoạt động: Đầu tư kinh doanh bất động sản