Tecco Tower Bến Thủy
- Loại hình phát triển Khu phức hợp
- Chủ đầu tư Công ty CP Đầu tư Xây dựng và Ứng dụng Công nghệ mới (TECCO)
- Địa chỉ Đường Huỳnh Thúc Kháng, Phường Bến Thuỷ, Vinh, Nghệ An
Thông tin dự ánTecco Tower Bến Thủy
Tecco Bến Thủy là dự án căn hộ chung cư được đầu tư bởiTổng công ty Teccotại TP. Vinh, Nghệ An với quy mô 1 block chung cư 22 tầng và24 lô đất liền kề. Các căn hộ tại dự án được xây dựng vớimật độ 14 căn/sàn, phân bổ đềutừtầng 2 đến tầng21 với thiết kế tiện nghi gồm nhiều loại diện tích từ 57,22-86,67m2/căn.
Cư dân Tecco Tower Bến Thủy sẽ được tận hưởng một cuộc sống hoàn mỹ nhất với không gian sống được chú trọng trong đầu tư - thiết kế - thi công, hiện đại, sang trọng mà vẫn đảm bảo gần gũi, giao hòa với thiên nhiên.
- Tên dự án:Tecco Tower Bến Thủy
- Chủ đầu tư: Tổng công ty Tecco
- Vị trí khu đất: Khối 13, phường Bến Thủy, TP. Vinh, tỉnh Nghệ An
- Quy mô:1 block chung cư 22 tầng và24 lô đất liền kề
- Các loại diện tích: 57,22m2 - 59,95m2 - 60,91m2 - 64,18m2 - 73,25m2 - 79,35m2 - 85,56m2 - 86,67m2
- Thiết kế: 2-3 phòng ngủ

Phối cảnh tổng thể dự ánTecco Tower Bến Thủy
Vị trí Tecco Tower Bến Thủy:
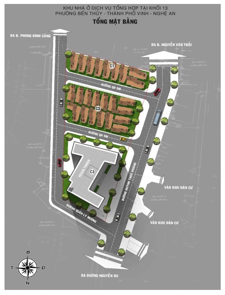
Tecco Tower Bến Thủy tọa lạc tạikhối 13, phường Bến Thủy, TP. Vinh, tỉnh Nghệ An. Dự án nằm ngaytrước dự án là đường Huỳnh Thúc Kháng rộng 24m, kết nối trực tiếp với2 tuyến đường Nguyễn Văn Trỗi vàNguyễn Du. Đây là một vị trí vô cùng thuận lợi cho giao thông đi lại nên cư dân có thể di chuyển vào trung tâm thành phố cũng như đi sang các tỉnh lân cận một cách dễ dàng thông qua cầu Bến Thủy và đường Nguyễn Du.

Vị trí dự ánTecco Tower Bến Thủy
Hạ tầng Tecco Tower Bến Thủy:
Chủ đầu tư đã kiến tạo nên Tecco Tower Bến Thủy "có một không hai" - một tổ hợp nhà ởhiện đại và tiện nghi, vượt lên những lợi thế sẵn có của khu vực.
- Trang bị 5 thang máy chất lượng cao, đảm bảo việc lưu thông thuận tiện cho cư dân tòa nhà.
- Liền kề trường học các cấp:Trường tiểu học, Trường mầm non Bến Thủy,THCS Bến Thủy, Trường Chuyên đại Học Vinh, Đại học Vinh
- Cách chợ Vinh 2 phút chạy xe, rất tiện mua sắm hàng ngày
- Cách siêu thị Metro7 phút di chuyển

Tiện ích dự án Tecco Tower Bến Thủy
Sơ đồ tổng thể Tecco Tower Bến Thủy
Mặt bằng Tecco Tower Bến Thủy
- Tầng điển hình
THƯ VIỆN ẢNH Tecco Tower Bến Thủy
Tiến độ quý I/2018 (ngày 28/01/2018) Tecco Tower Bến Thủy
Lộ trình thanh toán Tecco Tower Bến Thủy
Tiến độ thanh toán tạiTecco Tower Bến Thủy
- Đợt 1: Thanh toán trước20 triệu đồng khi đăng ký
- Đợt 2: Đóng 10% sau khi đăng ký 7 ngày
- Đợt 3: Đóng 10% khi xong phần móng
- Đợt 4: Đóng 10% khi lên sàn tầng 1
- Đợt 5: Đóng 5% khi lên sàn tầng 4
- Đợt 6: Đóng 5% khi lên sàn tầng 7
- Đợt 7: Đóng 5% khi lên sàn tầng 10
- Đợt 8: Đóng 5% khi lên sàn tầng 13
- Đợt 9: Đóng 5% khi lên sàn tầng 16
- Đợt 10: Đóng 5% khi lên dàn tầng 19
- Đợt 11: Đóng 5%khi đổ xong sàn tầng 22
- Đợt 11: Đóng 5% khi xong phần thô
- Đợt 12: Đóng 25% khi bàn giao căn hộ
- Đợt 13: Đóng 5% khi cấp sổ
Chủ đầu tư Tecco Tower Bến Thủy
- Công ty CP Đầu tư Xây dựng và Ứng dụng Công nghệ mới (TECCO)
- Địa chỉ:148 Điện Biên Phủ, phường 17, quận Bình Thạch, Tp.HCM
- Điện thoại:(08) 35122600
- Email: tecco@teccorp.com.vn
- WebSite:www.teccorp.com.vn
TECCO được thành lập ngày 17/12/2001 theo giấy chứng nhận đăng ký kinh doanh số 4103000739 do Sở Kế hoạch và Đầu tư Tp.HCMcấp. TECCO hoạt động chuyên nghiệp trong lĩnh vực đầu tư và xây dựng.
Với đội ngũ cán bộ quản lý gồm các tiến sỹ, thạc sỹ, kỹ sư, kiến trúc sư cùng lực lượng công nhân kỹ thuật chính quy, chuyên nghiệp và nhiều kinh nghiệm cùng máy móc thiết bị chuyên dùng hiện đại. TECCO đã đầu tư và thi công nhiều công trình quy mô lớn, chất lượng cao trên phạm vi cả nước, trải dài từ miền Tây Nam Bộ, Tp.HCM, Miền Đông Nam Bộ, TP. Vũng Tàu, TP. Vinh, TP. Hải Phòng, TP. Hà Nội.
Lĩnh vực hoạt động:
- Đầu tư kinh doanh: đầu tư địa ốc, sàn giao dịch bất động sản, đầutưkinhdoanh cơ sở hạ tầng, khu đô thị mới và khu công nghiệp,đầutư các khu du lịch và kinh doanh du lịch,đầutư và sản xuất công nghiệp,đầutư thủy điện, đầutư giáo dục,đầutư y tế, văn phòng cho thuê.
- Xây dựng: Xây dựng các công trình dân dụng, công nghiệp, giao thông vận tải, thủy lợi, xây dựng điện và công trình bưu điện, xây dựng mạng lưới điện đến 35KV.
- Lĩnh vực khác:
+ Thiết kế công trình, kinh doanh xuất nhập khẩu hàng hoá, kinh doanh các loại dịch vụ: vận tải, du lịch, giao nhận
+ Các đơn vị trực thuộc
+ Chi nhánh Nghệ An
+ Chi nhánh Hà Nội
Các công ty thành viên:
+ Công ty CP TECCO miền Trung
+ Công ty CP TECCO miền Nam
+ Công ty CP đầu tư thủy điện Đắk Pri
+ Công ty CP TECCO Hà Nội
+ Công ty TNHH một thành viên kinh doanh dịch vụ bất động sản TECCOREALS
+ Công ty CP đầu tư thủy điện TECCO
+ Công ty TNHH một thành viên xây lắp Phương Nam
Các Công ty liên doanh, góp vốn:
+ Công ty CP du lịch quốc tế Hòn Dấu
+ Công ty CP điện tử Bình Hòa
+ Công ty CP xây lắp 6
+ Công ty CP đầu tư hạ tầng và đô thị dầu khí (PETROLAND)
+ Công ty CP xây lắp công nghiệp
+ Công ty CP đầu tư phát triển y tế Nam Việt