Vinhomes Golden River Ba Son
- Loại hình phát triển Khu phức hợp
- Chủ đầu tư Tập đoàn Vingroup
- Địa chỉ Phố Tôn Đức Thắng, Quận 1, Hồ Chí Minh
- Tổng diện tích 25.300 m²
- Quy mô dự án Gồm 4 phân khu với 16 tòa căn hộ, biệt thự đơn lập và song lập
Thông tin dự án Vinhomes Golden River Ba Son
Tập đoàn Vingroup đã chính thức giới thiệudự áncăn hộ Vinhomes Golden River Ba Son. Dự án có vị tríngay tạiquỹ đất vàng, thuộc nhà máy đóng tàu cảng Ba Son - Sài Gòn, đây là một trong nhữngđịa danh đã đi vào lịch sử của Tp.HCM. Khu phức hợp hiện đại vàđồng bộcảng Ba Son - Sài Gònđã được Bộ Xây dựng và Bộ Quốc phòng thống nhất phê duyệt cấpphép dự án thay thế quỹ đất xây dựng nhà ở xã hội tại đây.
Hơn nữa, siêu dự án Khu đô thị Vinhomes Golden River Ba Sonđược chủ đầu tư quy hoạch và phát triểntrở thành một khu phức hợp cao cấp khép kín phùhợp với quy hoạch của Sở Quy hoạch - Kiến trúc Tp.HCM. Theo đó,Vinhomes sẽ được sử dụng tốt đa ưu thế của bờ sông Sài Gòn để phát triểnkhông gian cộng đồng, hệ thốngcông viên xanh, giải trí.
Về mặt kiến trúc, dự án sẽ được đầu tưvới mật độ xây dựng thấp, cáccông trình cao tầng bảo đảm độ thông thoáng cũng như kết nối giữa cáckhu vực công viên dọc bờ sông và bên trong bờ sông.
- Tên chính thức: Vinhomes Golden River Ba Son
- Chủ đầu tư: Tập Đoàn Vingroup
- Quy mô: Hơn 25.29 ha
- Mật độ xây dựng rất thấp: Khoảng 18.6%
- Tầng hầm: Từ 1-4 tầng hầm
- Tầng nổi: Từ 1-60 tầng
- Bao gồm những hạng mục chức năng: Dịch vụ, thương mại, tài chính, giải trí, văn hóa, Oficetel, căn hộ, biệt thự cao cấp ven sông Sài Gòn

Phối cảnh Khu đô thị mớiVinhomes Golden River Ba Son
Vị trí Vinhomes Golden River Ba Son:
Dự án Vinhomes Golden River Ba Son tọa lạc ngay khu cảng Ba Son, là 1 trong 3 thương cảnh lớn nhất Tp.HCM. Đây được xem là "vị trí vàng và không gian xanh" độc nhất còn sót lại ngay tại trung tâm Sài Gòn.
Khu đô thị mới nằm ngay số 2 Tôn Đức Thắng, phường Bến Nghé, quận 1, Tp.HCM. Tuyến đường lớn này nối với những trục đường huyết mạch khu vực trung tâm quận 1 như Hai Bà Trưng, Đồng Khởi, Lê Thánh Tôn và nối liền đường Đinh Tiên Hoàng để tới quận 2.
Dự án tiếp giáp như sau:
- Phía Bắc giáp với rạch Thị Nghè
- Phía Đông và Đông Nam giáp với sông Sài Gòn
- Phía Tây và Tây Bắc giáp với đường Nguyễn Hữu Cảnh
- Phía Tây Nam giáp với cầu Thủ Thiêm 2 và đường Tôn Đức Thắng

Vị trí căn hộ Vinhomes Golden River Ba Son
Bên cạnh đó, dự án còn sở hữu lợi thế tọa lạc ở tuyến Metro số 1 và ga số 3, khu vực này trong tương lai sẽ được cải tạo thêm để trở thành nơi giải trí, vui chơi sầm uất. Hệ thống giao thông thuận lợi sẽ giúp cư dân di chuyển từ quận 1 sang quận 2 cực kỳ thuận tiện và nhanh chóng. Sự xuất hiện của chung cư Vinhomes Bason trong bối cảnh quỹ đất trung tâm quận 1 đã cạn kiệt như hiện tại sẽ đáp ứng tốt nhất nhu cầu về văn phòng làm việc, nhà ở và không gian giải trí cho các cư dân.
Vì vậy, Vinhomes Golden River Ba Son được đánh giá là khu đô thị đẹp nhất Sài Gòn và đang được đông đảo khách hàng, giới đầu tư mong đợi và kỳ vọng. Vinhomes Golden River sở hữu được vị trí đẹp tuyệt vời như mơ với cả 3 yếu tố:thiên thời, địa lợi, nhân hòa.
Hạ tầng Vinhomes Golden River Ba Son:
Tương tự với nhữngdự án khác mà chủ đầu tư xây dựng, Vinhomes Golden River được đầu tưphát triển thành một quần thể cư dân thu nhỏ với hàng loạt cáctiện ích cao cấp. Đâyđược coi là nét đặt trưng nhất của Vinhomes, luôn mang đếncác giá trị sống tốt nhất cho khách hàng.
Tiện ích nội khu
- Hệ thống boutique, shophouse, nhà hàng, siêu thị
- Hệ thống trường liên cấp chất lượng cao Vinschool
- Khu bảo tồn lịch sử, bảo tàng lịch sử Ba Son
- Đường dạo bộ, vườn hoa, công viên... trong lành, thoáng mát
- Mini gold tập Putting, khu vui chơi trẻ em ngoài trời, công viên dã ngoại, hệ thống đường, dịch vụ chăm sóc thú cưng
- Khu vực ngắm cảnh lãng mạn
- Quảng trường trung tâm rộng lớn
- Hệ thống bến thuyền sang trọng, cao cấp
- Cùng những tiện ích hiện đại khác

Các tiện ích tại Vinhomes Golden River Ba Son

Công viên cây xanh tại dự án
Tiện ích tòa nhà
- Spa cao cấp, khu tập Gym hiện đại dành cho cư dân tại dự án
- Sảnh lounge đón khách theo tiêu chuẩn 5 sao
- Khu vui chơi dành cho trẻ em
- Phòng máy tính
- Phòng họp, phòng đọc sách
- Phòng sinh hoạt cộng đồng

Tòa nhà được trang bị tiện ích cao cấp
Tiện ích đặc biệt
- Bến du thuyền Maryna có chiều dài 500m
- Nhà ga ngầm Metro số 3 tọa lạc ngay trong lòng dự án
- Quảng trường Land Mark với chiều cao 60 tầng
- Đường xe đạp và đường dạo bộ ven sông
- Trước mặt khu vực biệt thự vườn hoa nhiệt đới diện tích 1 ha

Bến du thuyền tại dự án

Tuyến Metro 3 trong lòng dự án
Sơ đồ tổng thể Vinhomes Golden River Ba Son
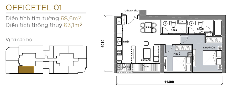
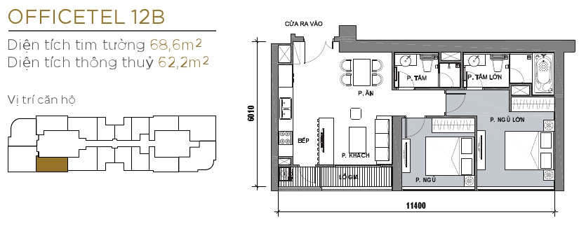
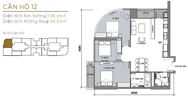
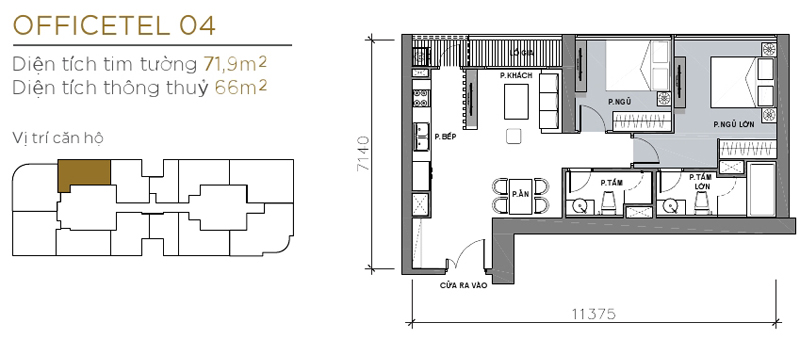
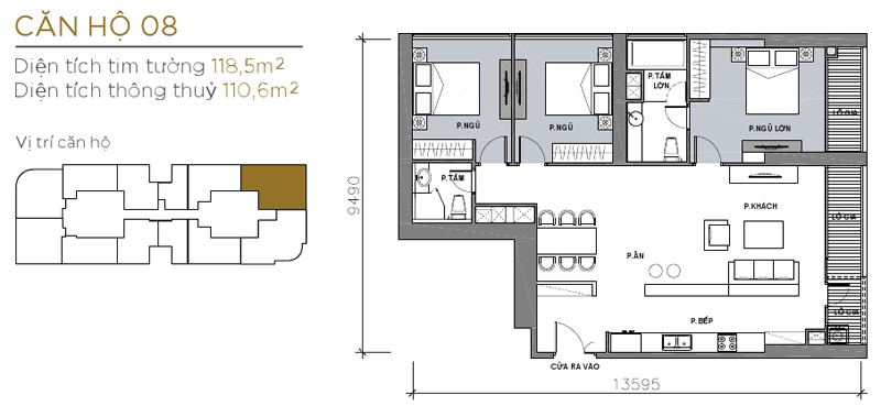
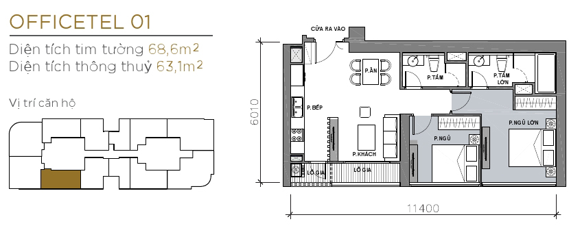
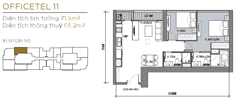
Mặt bằng Vinhomes Golden River Ba Son
- Tầng 2 - 22 AQUA 1
- Tầng 23 AQUA 1
- Tầng 24 - 41 AQUA 1
- Tầng 42 - 47 AQUA 1
- Tầng điển hình AQUA2
- Tầng 23 AQUA 2
- Tầng 42 - 47 AQUA 2
- Tầng điển hình AQUA3
- Tầng 23 AQUA 3
- Tầng 34 - 39 AQUA 3
- Tầng điển hình AQUA4
- Tầng 18 AQUA 4
- Tầng 28 - 33 AQUA 4
- Tầng điển hình LUX 5
Các căn hộ tầng 2 - 22 AQUA 1 Các căn hộ tầng điển hình AQUA 2 Các căn hộ tầng điển hình AQUA 3
THƯ VIỆN ẢNH Vinhomes Golden River Ba Son
Tiến độ quý II/2016 (ngày 09/04/2016) Vinhomes Golden River Ba Son
Tiến độ quý I/2017 (ngày 28/01/2017) Vinhomes Golden River Ba Son
Tiến độ quý IV/2017 (ngày 23/12/2017) Vinhomes Golden River Ba Son
VIDEO Vinhomes Golden River - Video chính thức của dự án
Lộ trình thanh toán Vinhomes Golden River Ba Son
Cáccăn hộ Vinhomes Ba Sonsẽ chính thức mở bán trong tháng 4/2016 với tháp căn hộ The Aqua 1 và The Aqua 2 view trực diện sông Sài Gòn và công viên trung tâm.
- Căn 1 phòng ngủ giá từ 4 tỷ/căn
- Căn 2 phòng ngủ giá từ 7 tỷ/căn
- Căn 3-4 phòng ngủ giá từ 12 tỷ/căn
Đặc biệt, loại căn hộ 4 phòng ngủ, view trực diện sông chỉ có từ tầng 42-47 có số lượng rất hạn chế.
Tiến độ thanh toán

Hỗ trợ tài chính
Tỷ lệ Giá trị căn hộ được hỗ trợ lãi suất: 75% Giá trị căn hộ ( 75% với ngân hàng ViettinBankhoặc 70% với ngân hàng Techcombank )
Thời hạn vay vốn: 25 năm kể từ ngày giải ngân
Lãi suất hỗ trợ: 0% / tháng trong thời gian hỗ trợ ( Sau thời gian hỗ trợ , lãi suất vay theo quy định ngân hàng)
Ân hạn nợ gốc: Khách hàng được ân hạn trả nợ gốc trong thời gian hỗ trợ lãi suất
Thời gian hỗ trợ lãi suất: Lên tới 24 tháng kể từ ngày giải ngân khoản vay đầu tiên.
Phí trả nợ trước hạn ( trong và sau khi hỗ trợ ): Miễn phí trả nợ trước hạn của khoản vay HỖ TRỢ LÃI SUẤT trong thời gian được HTLS. Sau thời gian hỗ trợ, phí phạt trả nợ trước hạn sẽ được được quy định theo Ngân hàng.

Chủ đầu tư Vinhomes Golden River Ba Son
- Tập đoàn Vingroup
- Địa chỉ:Việt Hưng, Long Biên, Hà Nội, Việt Nam
- Điện thoại:(04) 39749999
- Email: info@vingroup.net
- WebSite:www.vingroup.net
Tập đoàn Vingrouptiền thân là Tập đoàn Technocom, được thành lập tại Ukraina năm 1993 bởi những người Việt Nam trẻ tuổi, hoạt động ban đầu trong lĩnh vực thực phẩm và thành công rực rỡ với thương hiệu Mivina.
Với tầm nhìn dài hạn và quan điểm phát triển bền vững, Vingroup đã tập trung đầu tư vào các lĩnh vực du lịch và bất động sản với hai thương hiệu chiến lược là Vinpearl và Vincom. 10 năm sau đó, Vinpearl đã trở thành cánh chim đầu đàn của ngành Du lịch với chuỗi các khách sạn, khu nghỉ dưỡng, khu biệt thự biển, công viên giải trí, sân golf… đẳng cấp năm sao và trên năm sao quốc tế. Trong khi đó, Vincom cũng đã trở thành thương hiệu số 1 Việt Nam về bất động sản với hàng loạt các tổ hợp TTTM – Văn phòng – Căn hộ đẳng cấp tại vị trí đắc địa và những khu đô thị phức hợp lớn, hiện đại, dẫn đầu cho xu thế đô thị thông minh - sinh thái hạng sang tại Việt Nam.
Tháng 1/2012, Tập đoàn Vingroup được thành lập sau sự kiện sáp nhập của 2 công ty Bất động sản hàng đầu của Việt Nam: Công ty Cổ phần Vinpearl vàCông ty Cổ phần Vincom.
Trên tinh thần phát triển bền vững và chuyên nghiệp, Vingroup tập trung phát triển với nhiều nhóm thương hiệu, như: Vinhomes (Hệ thống bất động sản nhà ở dịch vụ đẳng cấp), Vincom (Hệ thống TTTM đẳng cấp); Vinpearl (Bất động sản du lịch, dịch vụ du lịch - giải trí); Đồng thời mở rộng ra các lĩnh vực như y tế chất lượng cao (Vinmec), phát triển giáo dục (Vinschool)…
Tin rao thuộc dự án
Xem tin rao Bán căn hộ chung cư Vinhomes Golden River Ba Son
Xem tin rao Bán nhà riêng, ngõ, hẻm Vinhomes Golden River Ba Son
Xem tin rao Bán nhà biệt thự, liền kề Vinhomes Golden River Ba Son
Xem tin rao Bán nhà mặt tiền, mặt phố Vinhomes Golden River Ba Son
Xem tin rao Bán đất nền dự án Vinhomes Golden River Ba Son
Xem tin rao Bán đất thổ cư Vinhomes Golden River Ba Son
Xem tin rao Bán loại bất động sản khác Vinhomes Golden River Ba Son
Xem tin rao Cho thuê căn hộ chung cư Vinhomes Golden River Ba Son
Xem tin rao Cho thuê nhà riêng Vinhomes Golden River Ba Son
Xem tin rao Cho thuê nhà mặt phố Vinhomes Golden River Ba Son
Xem tin rao Cho thuê nhà trọ, phòng trọ Vinhomes Golden River Ba Son
Xem tin rao Cho thuê văn phòng Vinhomes Golden River Ba Son
Xem tin rao Cho thuê cửa hàng, ki ốt Vinhomes Golden River Ba Son
Xem tin rao Cho thuê loại bất động sản khác Vinhomes Golden River Ba Son
Xem tin rao Mua căn hộ chung cư Vinhomes Golden River Ba Son
Xem tin rao Cần thuê căn hộ chung cư Vinhomes Golden River Ba Son
Xem tin rao Bán cửa hàng & ki ốt Vinhomes Golden River Ba Son
Dự án cùng khu vực
Indochina Park Tower
Số 4 Nguyễn Đình Chiểu, Phường Đa Kao, Quận 1, Hồ Chí Minh
Giá từ:Đang cập nhật