Orient Apartment

5
Orient Apartment
Tỷ lệ: 5 (93%) 68 votes
.Đánh giá của bạn
  • Loại hình phát triển Khu phức hợp
  • Chủ đầu tư Công ty Cổ phần Thuỷ Sản Số 4
  • Địa chỉ 331 Bến Vân Đồn, Phường 1, Quận 4, Hồ Chí Minh
  • Tổng diện tích 3.275 m²
  • Diện tích xây dựng 1.350 m²
  • Giá bán 27 triệu/m²
  • Quy mô dự án gồm 18 tầng

Thông tin dự ánOrient Apartment

Dự án cao ốc văn phòng và căn hộ cao cấp Orient Apartment nằm trong quần thể đô thị hài hòa, sang trọng, không gian thông thoáng với diện tích khuôn viên rộng 3.275 m2.

Khu cao ốc văn phòng và căn hộ cao cấp Orient Apartment được tọa lạc trên mặt tiền số 331 đường Bến Vân Đồn, phường 1, Quận 4, được giáp với Đại lộ Đông Tây – con đường chiến lược của Thành phố Hồ Chí Minh và Rạch Bến Nghé. Khu căn hộ còn có vị trí gần với cầu Nguyễn Văn Cừ sẽ lưu thông vào cuối năm 2008 và được kết nối giao thông thuận lợi với Quận 1, quận 4, quận 5, quận 8 và liền kế với khu đô thị mới Phú Mỹ Hưng, đặc biệt chỉ 3 phút đến chợ Bến Thành.

Ngoài ra, Orient Apartment còn gần các trung tâm thương mại, bệnh viện, trường học…đảm bảo cuộc sống hoàn thiện cho bạn và gia đình.

- Tên dự án: Orient Apartment

- Địa chỉ: 331 Bến Vân Đồn, phường 1, quận 4, TP.HCM

- Chủ đầu tư: Công ty Cổ phần Thủy Sản Số 4

- Tổng diện tích khuđất: 3,275m2

- Diện tích xây dựng: 1349,6 m2

- Đường nội bộ và cây xanh với 1174,6 m2

Tổng quan của Orient Apartment | 1
Phối cảnh tổng quan dự án

Orient Apartment-0 Orient Apartment-1 Orient Apartment-2

Vị trí Orient Apartment:

Khu cao ốc văn phòng và căn hộ cao cấp Orient Apartment tọa lạc trên mặt tiền số 331 đường Bến Vân Đồn, phường 1, quận 4, được giáp với Đại lộ Đông Tây – con đường chiến lược của Thành phố Hồ Chí Minh và Rạch Bến Nghé. Khu căn hộ còn có vị trí gần với cầu Nguyễn Văn Cừ sẽ lưu thông vào cuối năm 2008 và được kết nối giao thông thuận lợi với Quận 1, quận 4, quận 5, quận 8 và liền kế với khu đô thị mới Phú Mỹ Hưng, đặc biệt chỉ 3 phút đến chợ Bến Thành.

Vị trí của Orient Apartment | 1
Vị trí dự án

Hạ tầng Orient Apartment:

Công trình Orient Apartment bao gồm hai khối độc lập. Mặt chính của công trình nằm hướng tây bắc trên trục đường chính Bến Vân Đồn được mở rộng 25m, song hành cùng dòng kênh Bến Nghé và Đại Lộ Đông Tây tạo nên không gian rộng rải – thoáng mát và thuận tiện. Phía Tây giáp với đường dự kiến 20m gồm vĩa hè cây xanh chạy dọc trục đường. Phía Nam và phía Đông giáp với các hộ dân cư, được bao bọc bởi tường rào, đường nội bộ và cây xanh với 1174,6 m2. Diện tích xây dựng 1349,6m2, chiếm 45% tổng diện tích khuôn viên bao gồm 1 tầng hầm >2000 m2, tầng 1 -2 khu văn phòng, tầng 3 đến tầng 16 là 168 căn hộ cao cấp, tầng 17 là 12 căn hộ Penhous.

Hạ tầng, quy hoạch của Orient Apartment | 1

Công trình được đầu tư xây dựng với những trang thiết bị cao cấp và tiện nghi như:

+ Được trang bị 4 thang máy tốc độ cao và 04 thang bộ hiện đại.
+ Hệ thống báo cháy tự động – hệ thống Gas trung tâm, cung cấp đến từng căn hộ.
+ Hệ thống thông tin liên lạc và truyền hình cáp tốc độ cao.
+ Hệ thống xử lý rác trung tâm.
+ Trang thiết bị: những sản phẩm nổi tiếng
Qui mô công trình:
+ Diện tích đất: 3286,1 m2.
+ Diện tích xây dựng: 1350 m2.
+ Tầng xây dựng: 1 tầng hầm, tầng 1 -2 khu văn phòng, tầng 3 đến tầng 16 căn hộ cao cấp, tầng 17 căn hộ Penhous và 1 tầng mái.
+ Chiều cao công trình: 68.4 m

Hạ tầng, quy hoạch của Orient Apartment | 2

Sơ đồ tổng thể Orient Apartment

Orient Apartment

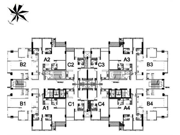
Mặt bằng Orient Apartment

  • Tầng điển hình
Tầng điển hình

Các căn hộ tầng điển hình

Thiết kế căn hộ A
Thiết kế căn hộ A Giá: 27 triệu/m² DT: 109m²
Thiết kế căn hộ B
Thiết kế căn hộ B Giá: 27 triệu/m² DT: 99m²
Thiết kế căn hộ A | Giá: 27 triệu/m² | DT: 109m² Thiết kế căn hộ B | Giá: 27 triệu/m² | DT: 99m²

THƯ VIỆN ẢNH Orient Apartment

Căn hộ Orient Apartment
Căn hộ Orient Apartment
Căn hộ Orient Apartment 1 Căn hộ Orient Apartment 2 Căn hộ Orient Apartment 3 Căn hộ Orient Apartment 4 Căn hộ Orient Apartment 5 Căn hộ Orient Apartment 6 Căn hộ Orient Apartment 7

Tiến độ quý IV/2015 (ngày 30/11/2015) Orient Apartment

  • Dự án đã hoàn thành

    Dự án đã hoàn thành

  • Dự án đã hoàn thành

    Dự án đã hoàn thành

VIDEO CĂN-HỘ-ORIENT-QUẬN-4-TẠI-SÀI-GÒN

CĂN-HỘ-ORIENT-QUẬN-4-TẠI-SÀI-GÒN

Lộ trình thanh toán Orient Apartment

Gíagốc mỗi căn hộ Orient từ 27 – 30 tiệu/m2 ( Chưa VAT và PBT)

Phương thức thanh toán

Đặt cọc: ngay khi đặt cọc: 50.000.000 đồng

Đợt 1: 7 ngày sau khi đặt cọc: 70% giá tri căn hộ bao gồm VAT

Đợt 2: Nhận nhà 1 tháng sau đợt 1: 25% giá tri căn hộ bao gồm VAT + 2% phí bảo trì

Đợt 3: Khi nhận sổ: 5% giá tri căn hộ bao gồm VAT

Chủ đầu tư Orient Apartment

  • Công ty Cổ phần Thuỷ Sản Số 4
  • Địa chỉ:320 Hưng Phú, Phường 9, Quận 8, Tp.HCM
  • Điện thoại:(08) 39543361
  • Email: seafoodno4@vnn.vn
  • WebSite:www.seafoodno4.com

Công ty Cổ phần Thuỷ sản số 4 được thành lập từ 2 Nhà máy chế biến thuỷ sản là Tân Nam Hải và Thái Bình ,hai Nhà máy nàyđã có trước ngày 30/4/1975.

Năm 1979, Bộ trưởng Bộ Hải sản quyết định hợp nhất 2 Nhà máy thành Xí nghiệp chế biến Thuỷ sản Đông lạnh số 4 và phát triển thành Công ty XNK và chế biến Thuỷ sản đông lạnh số 4 vào năm 1995 .

Thực hiện chủ trương của Đảng và Nhà nước về đổi mới và sắp xếp lại Doanh nghiệp nhà nước, tháng 6/2001, Công ty XNK và chế biến Thuỷ sản đông lạnh 4 chính thức chuyển đổi thành Công ty Cổ phần Thuỷ sản số 4.

Công ty Cổ Phần Thủy Sản Số 4 được thành lập theo giấy chứng nhận đăng ký kinh doanh số 4103000436 (đăng ký thay đổi lần 4 ngày 15/08/2006) do Sở Kế hoạch & Đầu tư Tp.HCM cấp ngày 31/05/2001.

Trong quá trình hoạt động, Công ty đã phát triển thêm 1 Nhà máy chế biến thuỷ sản chất lượng cao tại Cảng cá Tắc Cậu, Tỉnh Kiên Giang. Chi Nhánh Kiên Giangđược thành lập theo giấy chứng nhận đăng ký hoạt động số 56-13-000547 ngày 30/05/2006 do Sở Kế hoạch & Đầu tư Tỉnh Kiên Giang cấp.

Ngành nghề kinh doanh:

Thu mua, chế biến các mặt hàng thủy hải sản, nông sản, thủy hải sản, súc sản. Kinh doanh xuất nhập khẩu trực tiếp thủy hải sản, nông sản, súc sản và các loại hàng hóa, vật tư, thiết bị, công nghệ phẩm phục vụ cho các nhu cầu sản xuất kinh doanh trong và ngoài ngành. Dịch vụ bảo trì, bảo dưỡng sửa chữa các thiết bị cơ điện lạnh. Sản xuất kinh doanh các nghành nghề khác theo qui định của pháp luật Việt Nam. Kinh doanh nhà; cho thuê văn phòng. Sản xuất, gia công, mua bán hàng may mặc (trừ tẩy nhuộm).

Tin rao thuộc dự án

Xem tin rao Bán loại bất động sản khác Orient Apartment

Xem tin rao Cho thuê căn hộ chung cư Orient Apartment

Xem tin rao Cho thuê văn phòng Orient Apartment

Xem tin rao Cho thuê cửa hàng, ki ốt Orient Apartment

Dự án cùng khu vực

The Gold View

The Gold View

346 Bến Vân Đồn, Phường 1, Quận 4, Hồ Chí Minh

Giá từ:31.8 triệu/m²

Lancaster Residences D4

Lancaster Residences D4

Đường Tôn Thất Thuyết, Phường 16, Quận 4, Hồ Chí Minh

Giá từ:Đang cập nhật

VietCas Tower

VietCas Tower

Đường Nguyễn Tất Thành, Phường 18, Quận 4, Hồ Chí Minh

Giá từ:Đang cập nhật

Dự án cùng phân khúc

The Gold View

The Gold View

346 Bến Vân Đồn, Phường 1, Quận 4, Hồ Chí Minh

Giá từ:31.8 triệu/m²

The EverRich I

The EverRich I

Giao lộ 3/2 và Lê Đại Hành, Phường 15, Quận 11, Hồ Chí Minh

Giá từ:27 triệu/m²

Masteri Thảo Điền

Masteri Thảo Điền

Đường Xa Lộ Hà Nội, Phường Thảo Điền, Quận 2, Hồ Chí Minh

Giá từ:28 triệu/m²

Celadon City

Celadon City

Số 88 đường N1, phường Sơn Kỳ, quận Tân Phú, Tp.HCM

Giá từ:23 triệu/m²

Chung cư Hưng Phúc

Chung cư Hưng Phúc

Lô S10-2, Khu A - Đô thị Phú Mỹ Hưng, Phường Tân Phú, Quận 7, Hồ Chí Minh

Giá từ:31.5 triệu/m²

Q7 Saigon Riverside

Q7 Saigon Riverside

Đường Đào Trí, phường Phú Thuận, quận 7, Tp.HCM

Giá từ:26 triệu/m²

Xem thêm

Tiện ích
Xem phong thủy theo tuổi
Tìm kiếm dự án BĐS